272 807 €

Budget global

21 600 €

Loyer annuel

7.61 %

Rendement brut

Le brief

Aris est entrepreneur et n'a pas le temps de s'occuper à temps plein d'un projet. Il souhaite faire un investissement locatif clé en main en Île-de-France, peu importe la ville tant que l'opportunité est pertinente.

Vincent

Responsable immobilier Paris et première couronne

Rencontrer un conseiller immobilier ImAvenir

Nous définissons ensemble vos objectifs afin de concevoir un investissement locatif qui vous ressemble

Prendre rendez-vous

Le bien déniché

Caractéristiques

Typologie

Colocation

Fenêtres

4

Etage

1

Extérieur

Balcon

Chambre

3

Ascenseur

Oui
Rencontrer un conseiller immobilier ImAvenir

Nous définissons ensemble vos objectifs afin de concevoir un investissement locatif qui vous ressemble

Prendre rendez-vous

Les travaux d’optimisation

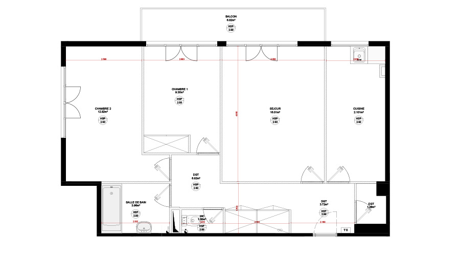
Ce grand appartement familial a été transformé en une collocation avec 3 chambres. Pour ce faire, nous avons cassé la cloison séparant le séjour de l'entrée puis installé une nouvelle pour conserver un couloir. La cuisine a été déplacé dans ce nouvel espace de vie près de la porte d'entrée. Ainsi, nous avons pu aménager une troisième chambre dans l'ancienne cuisine.

agathe

Architecte d’intérieur

Évolution du plan

Avant travaux © Imavenir

Après travaux © Imavenir

Évolution du salon

Avant travaux © Imavenir

Après travaux © Imavenir

Évolution de la salle d’eau

Avant travaux © Imavenir

Après travaux © Imavenir

Évolution de la chambre

Avant travaux © Imavenir

Après travaux © Imavenir

Rencontrer un conseiller immobilier ImAvenir

Nous définissons ensemble vos objectifs afin de concevoir un investissement locatif qui vous ressemble

Prendre rendez-vous

La stratégie financière

Ce projet offre un rendement brut très intéressant pour la région. La résidence avec parking est utile pour le secteur presque rural mais on peut également attirer le report du marché locatif parisien grâce à la proximité avec le RER C. Ce type de colocation permet également de diluer les risques sur 3 chambres et donc d'avoir des rentrées d'argent sécurisées. Une très belle opération de colocation donc !

Budget

N’hésitez pas à nous solliciter pour toute question sur nos prestations ou nos tarifs.

158 000 €

Prix de présentation HAI

- 7 000 €

Prix de négocié HAI

12 684 €

Notaire

3 500 €

Architecture et maîtrise d’ouvrage

77 300 €

Travaux de rénovation

10 000 €

Mobilier et cuisine

18 323 €

Honoraires

272 807 €

Budget total

Rendement

Tout investissement présente un risque de perte en capital total ou partiel. Nos calculs sont des prévisions indicatives qui prennent en compte l’état du marché, les conditions d’acquisition et les modalités de financement. Elles ne sont pas des garanties sur les performances financières de nos produits d’investissement. Dès la fin de l’opération après la mise en location, nous vous orientons vers un expert comptable pour optimiser vos revenus fonciers et la fiscalité à long terme.

21 600 €

Loyer annuel

2 040 €

Charges de copropriété

217 €

Taxe foncière

7.61 %

Rendement brut

Rencontrer un conseiller immobilier ImAvenir

Nous définissons ensemble vos objectifs afin de concevoir un investissement locatif qui vous ressemble

Prendre rendez-vous

Newsletter ImAvenir

Rejoindre notre newsletter

Recevez tous les mois le meilleur de l’investissement locatif directement dans votre boite mail.

En vous inscrivant, vous acceptez de recevoir par e-mail les actualités et conseils d’ImAvenir sur l’investissement locatif. Pour en savoir plus sur la gestion de vos données, consultez notre politique de confidentialité.