185 579 €

Budget global

10 800 €

Loyer annuel

6.2 %

Rendement brut

Le brief

Yonathan, profondément engagé dans une démarche de responsabilité sociétale et environnementale, a choisi d’investir dans une "passoire thermique". Ce projet illustre parfaitement l’approche d'investissement locatif clé en main d’ImAvenir, qui accompagne les investisseurs dans la valorisation de biens en région parisienne.

Mathieu Doliveux

Directeur Associé

Rencontrer un conseiller immobilier ImAvenir

Nous définissons ensemble vos objectifs afin de concevoir un investissement locatif qui vous ressemble

Prendre rendez-vous

Le bien déniché

Caractéristiques

Typologie

Studio

Fenêtres

1

Etage

6

Extérieur

Aucun

Chambre

Ascenseur

Oui
Rencontrer un conseiller immobilier ImAvenir

Nous définissons ensemble vos objectifs afin de concevoir un investissement locatif qui vous ressemble

Prendre rendez-vous

Les travaux d’optimisation

La rénovation a ciblé l’isolation et la circulation d’air pour améliorer la performance énergétique. La cuisine et la salle d’eau ont été modernisées : une douche plus spacieuse et un lave-linge ont été ajoutés, répondant aux attentes des jeunes actifs. Ces optimisations rendent l’appartement pratique et attractif en plein cœur de Paris.

daphne

Architecte d’intérieur

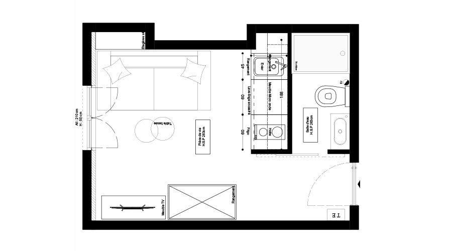
Évolution du plan

Avant travaux © Imavenir

Après travaux © Imavenir

Évolution de la salle d’eau

Avant travaux © Imavenir

Après travaux © Imavenir

Évolution de la cuisine

Avant travaux © Imavenir

Après travaux © Imavenir

Rencontrer un conseiller immobilier ImAvenir

Nous définissons ensemble vos objectifs afin de concevoir un investissement locatif qui vous ressemble

Prendre rendez-vous

La stratégie financière

Ce projet offre un excellent rendement pour un investissement dans Paris. Les travaux de rénovation énergétique réalisés sécurisent la location face aux futures restrictions liées à la consommation des logements. De plus, ils permettent de déplafonner le loyer, augmentant ainsi la rentabilité tout en répondant aux attentes des locataires actuels. Une opération réussie qui combine performance financière et engagement responsable.

Budget

N’hésitez pas à nous solliciter pour toute question sur nos prestations ou nos tarifs.

135 000 €

Prix de présentation HAI

- 0 €

Prix de négocié HAI

11 340 €

Notaire

2 000 €

Architecture et maîtrise d’ouvrage

18 275 €

Travaux de rénovation

6 500 €

Mobilier et cuisine

12 464 €

Honoraires

185 579 €

Budget total

Rendement

Tout investissement présente un risque de perte en capital total ou partiel. Nos calculs sont des prévisions indicatives qui prennent en compte l’état du marché, les conditions d’acquisition et les modalités de financement. Elles ne sont pas des garanties sur les performances financières de nos produits d’investissement. Dès la fin de l’opération après la mise en location, nous vous orientons vers un expert comptable pour optimiser vos revenus fonciers et la fiscalité à long terme.

10 800 €

Loyer annuel

252 €

Charges de copropriété

250 €

Taxe foncière

6.2 %

Rendement brut

Rencontrer un conseiller immobilier ImAvenir

Nous définissons ensemble vos objectifs afin de concevoir un investissement locatif qui vous ressemble

Prendre rendez-vous

Newsletter ImAvenir

Rejoindre notre newsletter

Recevez tous les mois le meilleur de l’investissement locatif directement dans votre boite mail.

En vous inscrivant, vous acceptez de recevoir par e-mail les actualités et conseils d’ImAvenir sur l’investissement locatif. Pour en savoir plus sur la gestion de vos données, consultez notre politique de confidentialité.