246 989 €

Budget global

13 800 €

Loyer annuel

5.94 %

Rendement brut

Le brief

Arthur, manager de programme au sein d’une entreprise de la tech, vit aujourd’hui à Singapour. Originaire de la région parisienne, il souhaite y réaliser un investissement locatif clé en main afin de se constituer un patrimoine tout en restant à distance.

Vincent

Responsable immobilier Paris et première couronne

Rencontrer un conseiller immobilier ImAvenir

Nous définissons ensemble vos objectifs afin de concevoir un investissement locatif qui vous ressemble

Prendre rendez-vous

Le bien déniché

Caractéristiques

Typologie

T2

Fenêtres

2

Etage

4

Extérieur

Balcon

Chambre

1

Ascenseur

Oui
Rencontrer un conseiller immobilier ImAvenir

Nous définissons ensemble vos objectifs afin de concevoir un investissement locatif qui vous ressemble

Prendre rendez-vous

Les travaux d’optimisation

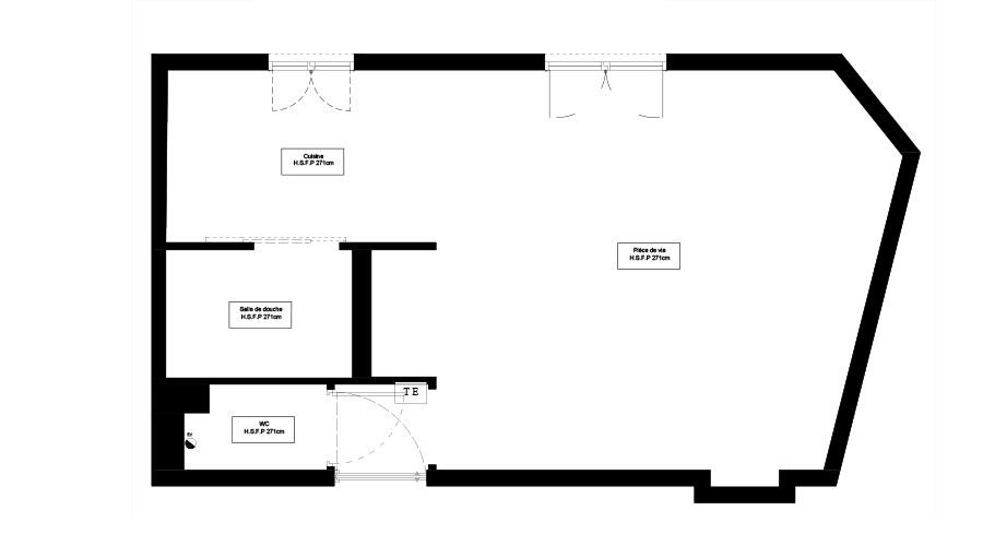
L’appartement a été repensé afin d’optimiser chaque mètre carré disponible. Une nouvelle chambre a été créée dans l’ancienne cuisine, grâce à la présence d’une seconde fenêtre, ce qui permet d’augmenter le loyer par rapport à un studio de surface équivalente et d’attirer une clientèle diversifiée, soucieuse de pouvoir recevoir des invités. Les équipes ont également procédé à une rénovation complète : murs, sols et plafonds, remplacement des menuiseries pour une isolation améliorée, et reconfiguration de la salle d’eau afin d’offrir un espace fonctionnel et harmonieux. Le résultat : un appartement confortable, lumineux et parfaitement adapté à la demande locative locale, avec une belle pièce de vie et une chambre supplémentaire.

Daphné

Architecte d’intérieur

Evolution des plans

Avant travaux © Imavenir

Après travaux © Imavenir

Évolution du salon

Avant travaux © Imavenir

Après travaux © Imavenir

Évolution de la cuisine

Avant travaux © Imavenir

Après travaux © Imavenir

Evolution de la salle d'eau

Avant travaux © Imavenir

Après travaux © Imavenir

Évolution de la chambre

Avant travaux © Imavenir

Après travaux © Imavenir

Rencontrer un conseiller immobilier ImAvenir

Nous définissons ensemble vos objectifs afin de concevoir un investissement locatif qui vous ressemble

Prendre rendez-vous

La stratégie financière

Le montage financier du projet répond parfaitement aux attentes de notre client, tout en anticipant une valorisation patrimoniale progressive grâce aux futurs aménagements du secteur. L’arrivée de la ligne 15 du métro Grand Paris Express, dont la station Bécon-les-Bruyères se situera à quelques minutes de l’appartement, offrira une accessibilité encore meilleure que la gare actuelle.​ Ces nouvelles infrastructures accompagneront le développement du bassin d’emploi local. L’investissement réalisé allie donc rentabilité locative immédiate et potentiel de plus-value à moyen terme, dans un secteur en pleine mutation.

Mathieu Doliveux

Directeur Associé

Budget

N’hésitez pas à nous solliciter pour toute question sur nos prestations ou nos tarifs.

180 000 €

Prix de présentation HAI

- 5 000 €

Prix de négocié HAI

14 700 €

Notaire

2 000 €

Architecture et maîtrise d’ouvrage

30 800 €

Travaux de rénovation

7 900 €

Mobilier et cuisine

16 589 €

Honoraires

246 989 €

Budget total

Rendement

Tout investissement présente un risque de perte en capital total ou partiel. Nos calculs sont des prévisions indicatives qui prennent en compte l’état du marché, les conditions d’acquisition et les modalités de financement. Elles ne sont pas des garanties sur les performances financières de nos produits d’investissement. Dès la fin de l’opération après la mise en location, nous vous orientons vers un expert comptable pour optimiser vos revenus fonciers et la fiscalité à long terme.

13 800 €

Loyer annuel

960 €

Charges de copropriété

360 €

Taxe foncière

5.94 %

Rendement brut

Rencontrer un conseiller immobilier ImAvenir

Nous définissons ensemble vos objectifs afin de concevoir un investissement locatif qui vous ressemble

Prendre rendez-vous

Newsletter ImAvenir

Rejoindre notre newsletter

Recevez tous les mois le meilleur de l’investissement locatif directement dans votre boite mail.

En vous inscrivant, vous acceptez de recevoir par e-mail les actualités et conseils d’ImAvenir sur l’investissement locatif. Pour en savoir plus sur la gestion de vos données, consultez notre politique de confidentialité.