152 104 €

Budget global

9 900 €

Loyer annuel

6.5 %

Rendement brut

Le brief

Diane souhaitait réaliser un investissement locatif clé en main en petite couronne parisienne et trouver un bien sécurisé et avec un bon rendement. Elle a choisi d'opter pour un financement comptant afin d'avoir un cashflow positif et de générer rapidement des revenus.

Mathieu Doliveux

Directeur Associé

Rencontrer un conseiller immobilier ImAvenir

Nous définissons ensemble vos objectifs afin de concevoir un investissement locatif qui vous ressemble

Prendre rendez-vous

Le bien déniché

Caractéristiques

Typologie

Studio

Fenêtres

2

Etage

6

Extérieur

Aucun

Chambre

Ascenseur

Non
Rencontrer un conseiller immobilier ImAvenir

Nous définissons ensemble vos objectifs afin de concevoir un investissement locatif qui vous ressemble

Prendre rendez-vous

Les travaux d’optimisation

La rénovation de ce logement s'est principalement axée sur son assainissement. En parallèle, la cuisine a été réaménagée pour la fusionner avec le séjour, et pour ajouter des équipements appréciés par les locataires, comme un lave-linge. Nous avons aussi repensé l'agencement du mobilier pour rendre la circulation plus fluide et permettre éventuellement de déplacer les meubles afin d'accueillir des invités.

daphne

Architecte d’intérieur

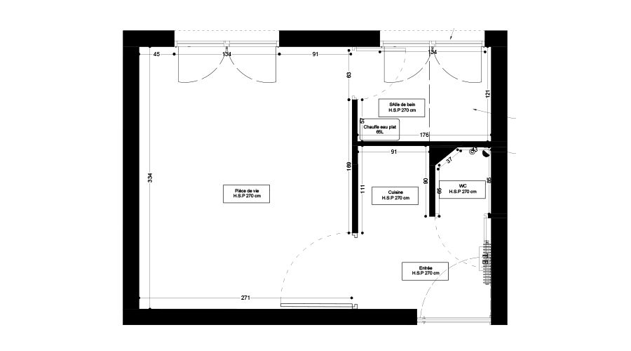
Évolution du plan

Avant travaux © Imavenir

Après travaux © Imavenir

Évolution de la salle d’eau

Avant travaux © Imavenir

Après travaux © Imavenir

Évolution du salon

Avant travaux © Imavenir

Après travaux © Imavenir

Rencontrer un conseiller immobilier ImAvenir

Nous définissons ensemble vos objectifs afin de concevoir un investissement locatif qui vous ressemble

Prendre rendez-vous

La stratégie financière

Un rendement brut de 6,5% dans une zone patrimoniale comme Clichy est très satisfaisant, voire exceptionnel. Les prix de l'immobilier sont relativement stables tout comme à Paris depuis quelques années mais cela en fait un placement durable qui protège de l'inflation et des fluctuations de l'économie. Notre cliente investisseuse achetant comptant, elle génère donc des revenus complémentaires très intéressants. Enfin, la proximité avec deux lignes de métro sécurise grandement le placement et permet d'écarter tout risque de vacance locative.

Budget

N’hésitez pas à nous solliciter pour toute question sur nos prestations ou nos tarifs.

107 000 €

Prix de présentation HAI

- 0 €

Prix de négocié HAI

8 988 €

Notaire

2 000 €

Architecture et maîtrise d’ouvrage

17 400 €

Travaux de rénovation

6 500 €

Mobilier et cuisine

10 216 €

Honoraires

152 104 €

Budget total

Rendement

Tout investissement présente un risque de perte en capital total ou partiel. Nos calculs sont des prévisions indicatives qui prennent en compte l’état du marché, les conditions d’acquisition et les modalités de financement. Elles ne sont pas des garanties sur les performances financières de nos produits d’investissement. Dès la fin de l’opération après la mise en location, nous vous orientons vers un expert comptable pour optimiser vos revenus fonciers et la fiscalité à long terme.

9 900 €

Loyer annuel

912 €

Charges de copropriété

366 €

Taxe foncière

6.5 %

Rendement brut

Rencontrer un conseiller immobilier ImAvenir

Nous définissons ensemble vos objectifs afin de concevoir un investissement locatif qui vous ressemble

Prendre rendez-vous

Newsletter ImAvenir

Rejoindre notre newsletter

Recevez tous les mois le meilleur de l’investissement locatif directement dans votre boite mail.

En vous inscrivant, vous acceptez de recevoir par e-mail les actualités et conseils d’ImAvenir sur l’investissement locatif. Pour en savoir plus sur la gestion de vos données, consultez notre politique de confidentialité.