254 199 €

Budget global

11 400 €

Loyer annuel

4.78 %

Rendement brut

Le brief

Agnès, qui travaille dans le secteur bancaire, et Alexandre, dans l'artisanat quant-à-lui, recherchent ensemble un investissement locatif clé en main dans la région parisienne.

Mathieu Doliveux

Directeur Associé

Rencontrer un conseiller immobilier ImAvenir

Nous définissons ensemble vos objectifs afin de concevoir un investissement locatif qui vous ressemble

Prendre rendez-vous

Le bien déniché

Caractéristiques

Typologie

Studio

Fenêtres

1

Etage

1

Extérieur

Aucun

Chambre

Ascenseur

Oui
Rencontrer un conseiller immobilier ImAvenir

Nous définissons ensemble vos objectifs afin de concevoir un investissement locatif qui vous ressemble

Prendre rendez-vous

Les travaux d’optimisation

La rénovation a principalement porté sur l’assainissement du bien et l’amélioration de son DPE. L’entrée a été ouverte pour créer un espace plus agréable et agrandir le séjour. De plus, l'équipement de la cuisine a été modernisé pour permettre l'installation d'une machine à laver, ce qui contribue à augmenter la valeur locative de ce studio.

daphne

Architecte d’intérieur

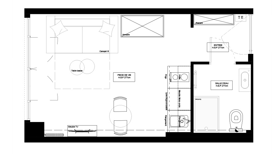
Évolution du plan

Avant travaux © Imavenir

Après travaux © Imavenir

Évolution du salon

Avant travaux © Imavenir

Après travaux © Imavenir

Évolution du salon

Avant travaux © Imavenir

Après travaux © Imavenir

Rencontrer un conseiller immobilier ImAvenir

Nous définissons ensemble vos objectifs afin de concevoir un investissement locatif qui vous ressemble

Prendre rendez-vous

La stratégie financière

Ce projet présente un rendement patrimonial attractif pour le secteur, avec une sécurité élevée et la possibilité de bénéficier de l’effet de levier patrimonial. L’arrivée de nouvelles lignes de transport dynamisera le marché immobilier, renforcée par les projets d’urbanisme en cours, notamment la création d'un parc et de nouvelles tours.

Budget

N’hésitez pas à nous solliciter pour toute question sur nos prestations ou nos tarifs.

189 000 €

Prix de présentation HAI

- 0 €

Prix de négocié HAI

15 876 €

Notaire

2 000 €

Architecture et maîtrise d’ouvrage

23 750 €

Travaux de rénovation

6 500 €

Mobilier et cuisine

17 073 €

Honoraires

254 199 €

Budget total

Rendement

Tout investissement présente un risque de perte en capital total ou partiel. Nos calculs sont des prévisions indicatives qui prennent en compte l’état du marché, les conditions d’acquisition et les modalités de financement. Elles ne sont pas des garanties sur les performances financières de nos produits d’investissement. Dès la fin de l’opération après la mise en location, nous vous orientons vers un expert comptable pour optimiser vos revenus fonciers et la fiscalité à long terme.

11 400 €

Loyer annuel

1 020 €

Charges de copropriété

400 €

Taxe foncière

4.78 %

Rendement brut

Rencontrer un conseiller immobilier ImAvenir

Nous définissons ensemble vos objectifs afin de concevoir un investissement locatif qui vous ressemble

Prendre rendez-vous

Newsletter ImAvenir

Rejoindre notre newsletter

Recevez tous les mois le meilleur de l’investissement locatif directement dans votre boite mail.

En vous inscrivant, vous acceptez de recevoir par e-mail les actualités et conseils d’ImAvenir sur l’investissement locatif. Pour en savoir plus sur la gestion de vos données, consultez notre politique de confidentialité.