149 351 €

Budget global

8 340 €

Loyer annuel

6.4 %

Rendement brut

Le brief

Aurélien a déjà investi en Censi Bouvard et en Pinel à Rennes, Besançon et Bordeaux. Il souhaitait continuer à faire fonctionner l'effet de levier bancaire mais en choisissant un investissement locatif clé en main dans la région parisienne cette fois-ci.

Alexandre Bougon

Directeur Associé

Rencontrer un conseiller immobilier ImAvenir

Nous définissons ensemble vos objectifs afin de concevoir un investissement locatif qui vous ressemble

Prendre rendez-vous

Le bien déniché

Caractéristiques

Typologie

Studio

Fenêtres

2

Etage

5

Extérieur

Aucun

Chambre

Ascenseur

Non
Rencontrer un conseiller immobilier ImAvenir

Nous définissons ensemble vos objectifs afin de concevoir un investissement locatif qui vous ressemble

Prendre rendez-vous

Les travaux d’optimisation

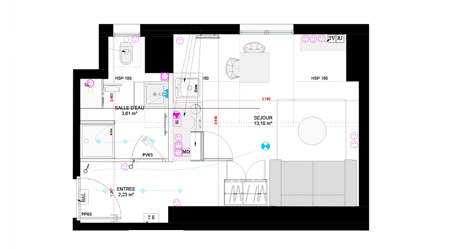
Pour optimiser cet appartement au maximum, nous avons monté une cloison dans l'ancienne cuisine pour y placer la nouvelle salle d'eau. La cuisine a été déplacée dans le séjour. On a ainsi pu créer un sas d'entrée ouvert sur la pièce à vivre.

agathe

Architecte d’intérieur

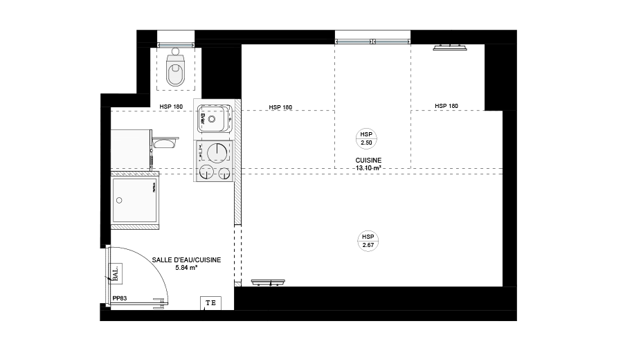
Évolution du plan

Avant travaux © Imavenir

Après travaux © Imavenir

Évolution du salon

Avant travaux © Imavenir

Après travaux © Imavenir

Évolution de la salle d’eau

Avant travaux © Imavenir

Après travaux © Imavenir

Rencontrer un conseiller immobilier ImAvenir

Nous définissons ensemble vos objectifs afin de concevoir un investissement locatif qui vous ressemble

Prendre rendez-vous

La stratégie financière

L'objectif de ce projet était d'atteindre une bonne rentabilité. Cette dernière permet d'autofinancer l'opération et donc de faire jouer à plein régime l'effet de levier bancaire. En outre, le prolongement du RER E vers la Défense dans quelques années va considérablement augmenter l'attractivité du bien.

Budget

N’hésitez pas à nous solliciter pour toute question sur nos prestations ou nos tarifs.

109 900 €

Prix de présentation HAI

- 4 898 €

Prix de négocié HAI

8 817 €

Notaire

2 000 €

Architecture et maîtrise d’ouvrage

16 997 €

Travaux de rénovation

6 500 €

Mobilier et cuisine

10 031 €

Honoraires

149 351 €

Budget total

Rendement

Tout investissement présente un risque de perte en capital total ou partiel. Nos calculs sont des prévisions indicatives qui prennent en compte l’état du marché, les conditions d’acquisition et les modalités de financement. Elles ne sont pas des garanties sur les performances financières de nos produits d’investissement. Dès la fin de l’opération après la mise en location, nous vous orientons vers un expert comptable pour optimiser vos revenus fonciers et la fiscalité à long terme.

8 340 €

Loyer annuel

0 €

Charges de copropriété

0 €

Taxe foncière

6.4 %

Rendement brut

Rencontrer un conseiller immobilier ImAvenir

Nous définissons ensemble vos objectifs afin de concevoir un investissement locatif qui vous ressemble

Prendre rendez-vous

Newsletter ImAvenir

Rejoindre notre newsletter

Recevez tous les mois le meilleur de l’investissement locatif directement dans votre boite mail.

En vous inscrivant, vous acceptez de recevoir par e-mail les actualités et conseils d’ImAvenir sur l’investissement locatif. Pour en savoir plus sur la gestion de vos données, consultez notre politique de confidentialité.