508 639 €

Budget global

20 400 €

Loyer annuel

4.25 %

Rendement brut

Le brief

Laurent a pris en charge la gestion du patrimoine de son beau-père et souhaitait faire un placement financier via un investissement locatif clé en main. Son objectif était clair : dénicher des opportunités immobilières exclusives à Paris, idéalement dans des quartiers bien desservis par les lignes de métro 13 ou 14.

Vincent

Responsable immobilier Paris et première couronne

Rencontrer un conseiller immobilier ImAvenir

Nous définissons ensemble vos objectifs afin de concevoir un investissement locatif qui vous ressemble

Prendre rendez-vous

Le bien déniché

Caractéristiques

Typologie

Colocation

Fenêtres

3

Etage

4

Extérieur

Aucun

Chambre

2

Ascenseur

Non
Rencontrer un conseiller immobilier ImAvenir

Nous définissons ensemble vos objectifs afin de concevoir un investissement locatif qui vous ressemble

Prendre rendez-vous

Les travaux d’optimisation

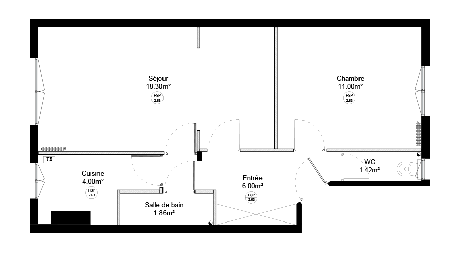
Notre projet de rénovation visait à métamorphoser ce petit appartement destiné à un couple en une colocation avec deux chambres indépendantes. Nous avons commencé par créer un espace commun en installant une cuisine ouverte sur le séjour. La cloison de l'ancienne cuisine a pu ainsi être déplacée pour libérer l'espace nécessaire à une chambre avec un lit double et des rangements. Enfin, nous avons assuré un maximum de confort en rénovant les revêtements, la plomberie et en améliorant l'isolation (murs et fenêtres).

daphne

Architecte d’intérieur

Évolution du plan

Avant travaux © Imavenir

Après travaux © Imavenir

Évolution de la chambre

Avant travaux © Imavenir

Après travaux © Imavenir

Évolution de la salle d’eau

Avant travaux © Imavenir

Après travaux © Imavenir

Évolution du salon

Avant travaux © Imavenir

Après travaux © Imavenir

Rencontrer un conseiller immobilier ImAvenir

Nous définissons ensemble vos objectifs afin de concevoir un investissement locatif qui vous ressemble

Prendre rendez-vous

La stratégie financière

Cet investissement est une excellente opportunité de placement pour le beau-père de notre client. La sécurité est un atout majeur, étant donné la localisation privilégiée de l'appartement qui permettra de louer très rapidement, d'autant plus que le bien est entièrement rénové pour permettre à tout locataire de s'y projeter pour une longue durée.

Budget

N’hésitez pas à nous solliciter pour toute question sur nos prestations ou nos tarifs.

399 000 €

Prix de présentation HAI

- 20 000 €

Prix de négocié HAI

31 836 €

Notaire

2 500 €

Architecture et maîtrise d’ouvrage

53 700 €

Travaux de rénovation

8 500 €

Mobilier et cuisine

34 239 €

Honoraires

508 639 €

Budget total

Rendement

Tout investissement présente un risque de perte en capital total ou partiel. Nos calculs sont des prévisions indicatives qui prennent en compte l’état du marché, les conditions d’acquisition et les modalités de financement. Elles ne sont pas des garanties sur les performances financières de nos produits d’investissement. Dès la fin de l’opération après la mise en location, nous vous orientons vers un expert comptable pour optimiser vos revenus fonciers et la fiscalité à long terme.

20 400 €

Loyer annuel

2 280 €

Charges de copropriété

500 €

Taxe foncière

4.25 %

Rendement brut

Rencontrer un conseiller immobilier ImAvenir

Nous définissons ensemble vos objectifs afin de concevoir un investissement locatif qui vous ressemble

Prendre rendez-vous

Newsletter ImAvenir

Rejoindre notre newsletter

Recevez tous les mois le meilleur de l’investissement locatif directement dans votre boite mail.

En vous inscrivant, vous acceptez de recevoir par e-mail les actualités et conseils d’ImAvenir sur l’investissement locatif. Pour en savoir plus sur la gestion de vos données, consultez notre politique de confidentialité.