759 478 €

Budget global

26 400 €

Loyer annuel

3.4 %

Rendement brut

Le brief

N'na Khady souhaitait investir dans un bien à Paris qu'elle pourrait transformer en résidence principale pour sa retraite. Elle s'est tournée vers l'investissement locatif clé en main pour financier le bien grâce aux loyers perçus.

Vincent

Responsable immobilier Paris et première couronne

Rencontrer un conseiller immobilier ImAvenir

Nous définissons ensemble vos objectifs afin de concevoir un investissement locatif qui vous ressemble

Prendre rendez-vous

Le bien déniché

Caractéristiques

Typologie

Colocation

Fenêtres

4

Etage

3

Extérieur

Balcon filant

Chambre

2

Ascenseur

Oui
Rencontrer un conseiller immobilier ImAvenir

Nous définissons ensemble vos objectifs afin de concevoir un investissement locatif qui vous ressemble

Prendre rendez-vous

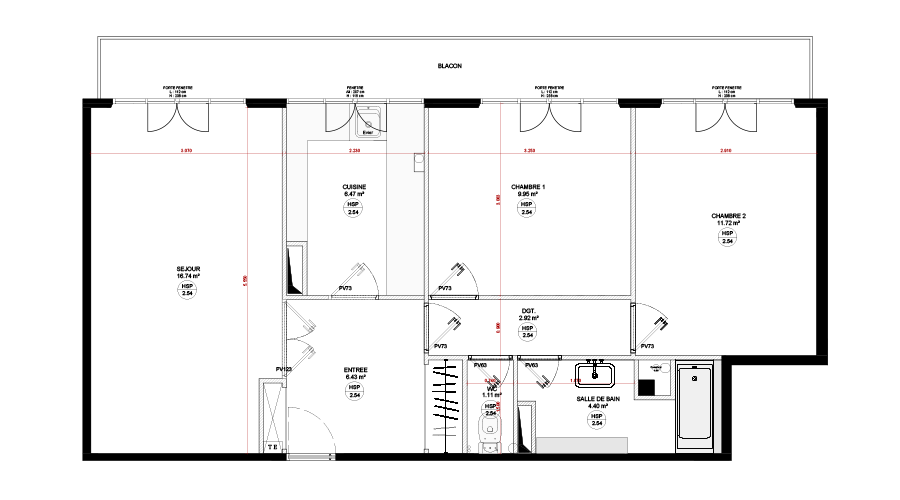
Les travaux d’optimisation

Pour optimiser au maximum l'espace de ce grand appartement, nous avons réduit la surface de l'entrée et démoli la porte la séparant du séjour. Nous avons pu ajouter une pièce servant de rangement à proximité des WC puis transformer la grande salle d'eau en deux plus petites. Cela a permis de créer une suite parentale avec sa propre salle d'eau.

agathe

Architecte d’intérieur

Évolution du plan

Avant travaux © Imavenir

Après travaux © Imavenir

Évolution du salon

Avant travaux © Imavenir

Après travaux © Imavenir

Évolution de la salle d’eau

Avant travaux © Imavenir

Après travaux © Imavenir

Évolution de la cuisine

Avant travaux © Imavenir

Après travaux © Imavenir

Rencontrer un conseiller immobilier ImAvenir

Nous définissons ensemble vos objectifs afin de concevoir un investissement locatif qui vous ressemble

Prendre rendez-vous

La stratégie financière

Cette opération n'est pas un projet d'investissement locatif pur mais répond aux besoins des propriétaires. Il permet de financer en partie l'achat d'un bien immobilier qui servira de résidence principale ou de pied-a-terre à leur retraite.

Budget

N’hésitez pas à nous solliciter pour toute question sur nos prestations ou nos tarifs.

582 000 €

Prix de présentation HAI

- 5 000 €

Prix de négocié HAI

48 468 €

Notaire

2 500 €

Architecture et maîtrise d’ouvrage

72 000 €

Travaux de rénovation

8 500 €

Mobilier et cuisine

51 010 €

Honoraires

759 478 €

Budget total

Rendement

Tout investissement présente un risque de perte en capital total ou partiel. Nos calculs sont des prévisions indicatives qui prennent en compte l’état du marché, les conditions d’acquisition et les modalités de financement. Elles ne sont pas des garanties sur les performances financières de nos produits d’investissement. Dès la fin de l’opération après la mise en location, nous vous orientons vers un expert comptable pour optimiser vos revenus fonciers et la fiscalité à long terme.

26 400 €

Loyer annuel

2 220 €

Charges de copropriété

750 €

Taxe foncière

3.4 %

Rendement brut

Rencontrer un conseiller immobilier ImAvenir

Nous définissons ensemble vos objectifs afin de concevoir un investissement locatif qui vous ressemble

Prendre rendez-vous

Newsletter ImAvenir

Rejoindre notre newsletter

Recevez tous les mois le meilleur de l’investissement locatif directement dans votre boite mail.

En vous inscrivant, vous acceptez de recevoir par e-mail les actualités et conseils d’ImAvenir sur l’investissement locatif. Pour en savoir plus sur la gestion de vos données, consultez notre politique de confidentialité.