214 246 €

Budget global

11 400 €

Loyer annuel

5.32 %

Rendement brut

Le brief

Thomas est consultant en supply chain. Il souhaite investir dans l'immobilier locatif clé en main à Paris pour faire placement financier très sécurisé avec un bon rendement.

Vincent

Responsable immobilier Paris et première couronne

Rencontrer un conseiller immobilier ImAvenir

Nous définissons ensemble vos objectifs afin de concevoir un investissement locatif qui vous ressemble

Prendre rendez-vous

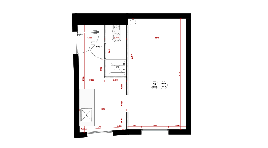
Le bien déniché

Caractéristiques

Typologie

T2

Fenêtres

2

Etage

RDC

Extérieur

Aucun

Chambre

1

Ascenseur

Non
Rencontrer un conseiller immobilier ImAvenir

Nous définissons ensemble vos objectifs afin de concevoir un investissement locatif qui vous ressemble

Prendre rendez-vous

Les travaux d’optimisation

Nous avons transformé ce studio en l'équivalent d'un T2 grâce à la création d'un espace nuit dans l'ancien séjour. La salle d'eau a également été déplacée et agrandie pour pouvoir ajouter un meuble vasque. Ce type d'équipements apporte du confort et permet d'augmenter la valeur locative. Ainsi, dans l'espace libéré par l'ancienne salle d'eau, nous avons pu aménager l'espace de vie puis installer une plus grande cuisine en longueur pour optimiser les circulations.

agathe

Architecte d’intérieur

Évolution du plan

Avant travaux © Imavenir

Après travaux © Imavenir

Évolution de la cuisine

Avant travaux © Imavenir

Après travaux © Imavenir

Évolution de la chambre

Avant travaux © Imavenir

Après travaux © Imavenir

Évolution de la salle d’eau

Avant travaux © Imavenir

Après travaux © Imavenir

Rencontrer un conseiller immobilier ImAvenir

Nous définissons ensemble vos objectifs afin de concevoir un investissement locatif qui vous ressemble

Prendre rendez-vous

La stratégie financière

Nous avons pu négocier 10 000 € sur le prix de vente. De quoi couvrir une partie de nos honoraires. En outre, ce projet permet d'atteindre un rendement très intéressant à Paris grâce à la rénovation et à l'optimisation de l'espace. C'est aussi un projet très sécurisé pour notre investisseur. Une belle opération parisienne donc !

Budget

N’hésitez pas à nous solliciter pour toute question sur nos prestations ou nos tarifs.

169 000 €

Prix de présentation HAI

- 159 000 €

Prix de négocié HAI

13 356 €

Notaire

1 500 €

Architecture et maîtrise d’ouvrage

19 000 €

Travaux de rénovation

7 000 €

Mobilier et cuisine

14 390 €

Honoraires

214 246 €

Budget total

Rendement

Tout investissement présente un risque de perte en capital total ou partiel. Nos calculs sont des prévisions indicatives qui prennent en compte l’état du marché, les conditions d’acquisition et les modalités de financement. Elles ne sont pas des garanties sur les performances financières de nos produits d’investissement. Dès la fin de l’opération après la mise en location, nous vous orientons vers un expert comptable pour optimiser vos revenus fonciers et la fiscalité à long terme.

11 400 €

Loyer annuel

50 €

Charges de copropriété

250 €

Taxe foncière

5.32 %

Rendement brut

Rencontrer un conseiller immobilier ImAvenir

Nous définissons ensemble vos objectifs afin de concevoir un investissement locatif qui vous ressemble

Prendre rendez-vous

Newsletter ImAvenir

Rejoindre notre newsletter

Recevez tous les mois le meilleur de l’investissement locatif directement dans votre boite mail.

En vous inscrivant, vous acceptez de recevoir par e-mail les actualités et conseils d’ImAvenir sur l’investissement locatif. Pour en savoir plus sur la gestion de vos données, consultez notre politique de confidentialité.