181 798 €

Budget global

9 900 €

Loyer annuel

5.8 %

Rendement brut

Le brief

Arthur a déjà réalisé deux investissement locatif clé en main en LMNP. Pour son troisième projet, il n'a plus le temps de prospecter et de visiter des biens. Il a donc fait appel à nos équipes.

Alexandre Bougon

Directeur Associé

Rencontrer un conseiller immobilier ImAvenir

Nous définissons ensemble vos objectifs afin de concevoir un investissement locatif qui vous ressemble

Prendre rendez-vous

Le bien déniché

Caractéristiques

Typologie

Studio

Fenêtres

2

Etage

2

Extérieur

Aucun

Chambre

Ascenseur

Oui
Rencontrer un conseiller immobilier ImAvenir

Nous définissons ensemble vos objectifs afin de concevoir un investissement locatif qui vous ressemble

Prendre rendez-vous

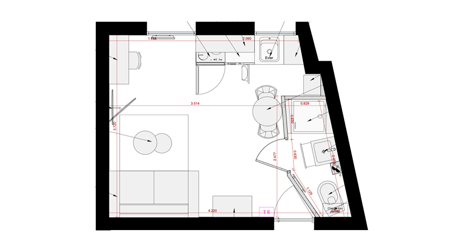
Les travaux d’optimisation

Dans ce studio, nous avons enlevé la cloison existante séparant l'ancienne cuisine du séjour pour agrandir l'espace de vie. Nous avons pu mieux équiper la cuisine en ajoutant une machine à laver et des plans de travail. L'aménagement du séjour a également été revu pour créer différents espaces : nuit, bureau, dîner. Nous avons également changé l'emplacement de la porte de la salle d'eau pour faciliter l'accès et l'ouverture.

agathe

Architecte d’intérieur

Évolution du plan

Avant travaux © Imavenir

Après travaux © Imavenir

Évolution du salon

Avant travaux © Imavenir

Après travaux © Imavenir

Évolution de la cuisine

Avant travaux © Imavenir

Après travaux © Imavenir

Rencontrer un conseiller immobilier ImAvenir

Nous définissons ensemble vos objectifs afin de concevoir un investissement locatif qui vous ressemble

Prendre rendez-vous

La stratégie financière

Notre investisseur a pu payer comptant l'opération et n'emprunter que l'équivalent du coût des travaux. Il s'agit donc d'une très bonne opération. Nous avons pu obtenir une rentabilité satisfaisante dans une zone à forte tension locative mais qui n'atteint pas encore les prix de Paris intra-muros. Ce projet bénéficie aussi d'une grande sécurité à long terme. Plusieurs projets d'installation de sièges sociaux sont prévus dans les années à venir avec une densification du centre-ville.

Budget

N’hésitez pas à nous solliciter pour toute question sur nos prestations ou nos tarifs.

132 000 €

Prix de présentation HAI

- 0 €

Prix de négocié HAI

11 088 €

Notaire

1 997 €

Architecture et maîtrise d’ouvrage

18 000 €

Travaux de rénovation

6 500 €

Mobilier et cuisine

12 210 €

Honoraires

181 798 €

Budget total

Rendement

Tout investissement présente un risque de perte en capital total ou partiel. Nos calculs sont des prévisions indicatives qui prennent en compte l’état du marché, les conditions d’acquisition et les modalités de financement. Elles ne sont pas des garanties sur les performances financières de nos produits d’investissement. Dès la fin de l’opération après la mise en location, nous vous orientons vers un expert comptable pour optimiser vos revenus fonciers et la fiscalité à long terme.

9 900 €

Loyer annuel

744 €

Charges de copropriété

289 €

Taxe foncière

5.8 %

Rendement brut

Rencontrer un conseiller immobilier ImAvenir

Nous définissons ensemble vos objectifs afin de concevoir un investissement locatif qui vous ressemble

Prendre rendez-vous

Newsletter ImAvenir

Rejoindre notre newsletter

Recevez tous les mois le meilleur de l’investissement locatif directement dans votre boite mail.

En vous inscrivant, vous acceptez de recevoir par e-mail les actualités et conseils d’ImAvenir sur l’investissement locatif. Pour en savoir plus sur la gestion de vos données, consultez notre politique de confidentialité.