214 612 €

Budget global

11 400 €

Loyer annuel

5.65 %

Rendement brut

Le brief

Aude cherche à diversifier son patrimoine mais n'a pas d'idée précise sur la stratégie à adopter. Elle souhaite passer par un service d'investissement locatif clé en main pour se faire conseiller et éviter les erreurs.

Mathieu Doliveux

Directeur Associé

Rencontrer un conseiller immobilier ImAvenir

Nous définissons ensemble vos objectifs afin de concevoir un investissement locatif qui vous ressemble

Prendre rendez-vous

Le bien déniché

Caractéristiques

Typologie

T2

Fenêtres

2

Etage

5

Extérieur

Aucun

Chambre

Ascenseur

Non
Rencontrer un conseiller immobilier ImAvenir

Nous définissons ensemble vos objectifs afin de concevoir un investissement locatif qui vous ressemble

Prendre rendez-vous

Les travaux d’optimisation

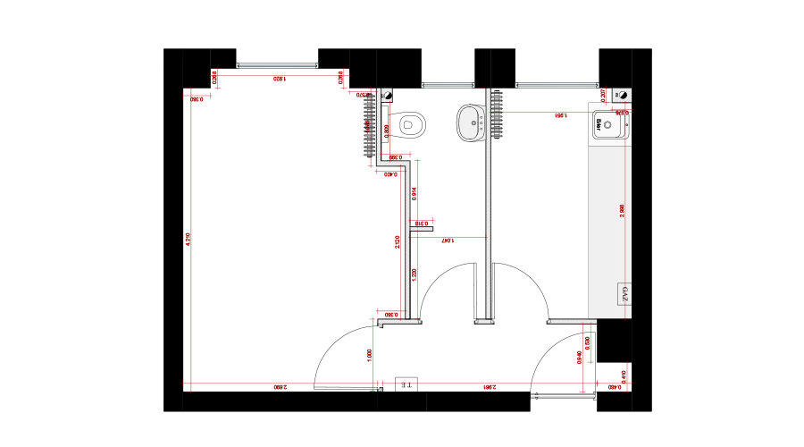
Nous avons transformé la cuisine existante en véritable chambre passer cet appartement d'un studio à l'équivalent d'un T2 pour augmenter la rentabilité. Nous avons également réduit la surface de la salle d'eau pour pouvoir installer la nouvelle cuisine contre la cloison entre l'entrée et la pièce de vie. Ainsi, nous obtenons une surface séparée en différents espace de vie en ayant une chambre cloisonnée qui séduira des jeunes actifs avec une meilleure solvabilité.

agathe

Architecte d’intérieur

Évolution du plan

Avant travaux © Imavenir

Après travaux © Imavenir

Évolution du salon

Avant travaux © Imavenir

Après travaux © Imavenir

Évolution de la cuisine

Avant travaux © Imavenir

Après travaux © Imavenir

Évolution de la chambre

Avant travaux © Imavenir

Après travaux © Imavenir

Rencontrer un conseiller immobilier ImAvenir

Nous définissons ensemble vos objectifs afin de concevoir un investissement locatif qui vous ressemble

Prendre rendez-vous

La stratégie financière

Ce projet offre un rendement intéressant dans un ville qui est à proximité immédiate de Paris et de ses plus grands pôles d'activités. Le sud de Clichy est en pleine transformation, ce qui fait espérer des plus-values intéressantes à long terme.

Budget

N’hésitez pas à nous solliciter pour toute question sur nos prestations ou nos tarifs.

155 000 €

Prix de présentation HAI

- 0 €

Prix de négocié HAI

13 020 €

Notaire

2 000 €

Architecture et maîtrise d’ouvrage

21 000 €

Travaux de rénovation

7 500 €

Mobilier et cuisine

14 293 €

Honoraires

214 612 €

Budget total

Rendement

Tout investissement présente un risque de perte en capital total ou partiel. Nos calculs sont des prévisions indicatives qui prennent en compte l’état du marché, les conditions d’acquisition et les modalités de financement. Elles ne sont pas des garanties sur les performances financières de nos produits d’investissement. Dès la fin de l’opération après la mise en location, nous vous orientons vers un expert comptable pour optimiser vos revenus fonciers et la fiscalité à long terme.

11 400 €

Loyer annuel

672 €

Charges de copropriété

320 €

Taxe foncière

5.65 %

Rendement brut

Rencontrer un conseiller immobilier ImAvenir

Nous définissons ensemble vos objectifs afin de concevoir un investissement locatif qui vous ressemble

Prendre rendez-vous

Newsletter ImAvenir

Rejoindre notre newsletter

Recevez tous les mois le meilleur de l’investissement locatif directement dans votre boite mail.

En vous inscrivant, vous acceptez de recevoir par e-mail les actualités et conseils d’ImAvenir sur l’investissement locatif. Pour en savoir plus sur la gestion de vos données, consultez notre politique de confidentialité.