131 000 €

Budget global

9 480 €

Loyer annuel

5.35 %

Rendement brut

Le brief

Barbara recherchait un bien à diviser en deux lots pour optimiser son projet dans le Grand Paris. Pour gagner du temps et sécuriser chaque étape, elle s’est tournée vers l'investissement locatif clé en main.

Vincent

Responsable immobilier Paris et première couronne

Rencontrer un conseiller immobilier ImAvenir

Nous définissons ensemble vos objectifs afin de concevoir un investissement locatif qui vous ressemble

Prendre rendez-vous

Le bien déniché

Caractéristiques

Typologie

Division

Fenêtres

2

Etage

RDC

Extérieur

Cour intérieure

Chambre

Ascenseur

Non
Rencontrer un conseiller immobilier ImAvenir

Nous définissons ensemble vos objectifs afin de concevoir un investissement locatif qui vous ressemble

Prendre rendez-vous

Les travaux d’optimisation

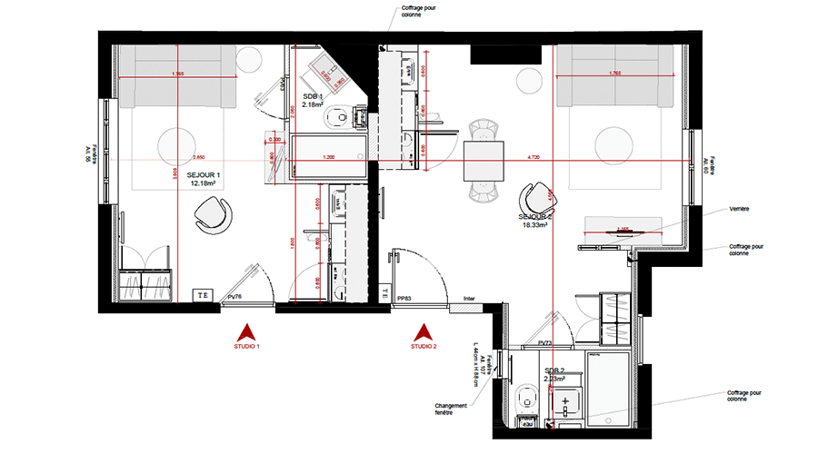
Ce bel appartement de 35m2 était à l'origine divisé en deux lots bien distincts. Nous avons donc rétabli les plans à l'initial pour mettre en location deux biens en une seule opération. Les deux appartements sont organisés en miroir pour les connecter à une seule arrivée d'eau et une seule colonne d'évacuation. On diminue ainsi le coût des travaux tout en optimisant la surface.

agathe

Architecte d’intérieur

Évolution du plan

Avant travaux © Imavenir

Après travaux © Imavenir

Évolution du salon

Avant travaux © Imavenir

Après travaux © Imavenir

Évolution de la salle d’eau

Avant travaux © Imavenir

Après travaux © Imavenir

Évolution de la cuisine

Avant travaux © Imavenir

Après travaux © Imavenir

Rencontrer un conseiller immobilier ImAvenir

Nous définissons ensemble vos objectifs afin de concevoir un investissement locatif qui vous ressemble

Prendre rendez-vous

La stratégie financière

Ce projet coche toutes les cases pour Barbara qui souhaitait trouver un bien avec une bonne rentabilité dans le Grand Paris. Saint-Ouen est une ville dynamique qui va encore se transformer dans les années à venir. Les prix de l'immobilier ont tendance à se stabiliser. On ne pourra pas espérer d'importantes plus-values. En revanche, l'attractivité de la ville grandit à mesure que les projets fleurissent. On pourra donc augmenter le montant du loyer dans quelques années.

Budget

N’hésitez pas à nous solliciter pour toute question sur nos prestations ou nos tarifs.

131 000 €

Prix de présentation HAI

- 0 €

Prix de négocié HAI

10 480 €

Notaire

2 000 €

Architecture et maîtrise d’ouvrage

25 512 €

Travaux de rénovation

6 500 €

Mobilier et cuisine

12 634 €

Honoraires

131 000 €

Budget total

Rendement

Tout investissement présente un risque de perte en capital total ou partiel. Nos calculs sont des prévisions indicatives qui prennent en compte l’état du marché, les conditions d’acquisition et les modalités de financement. Elles ne sont pas des garanties sur les performances financières de nos produits d’investissement. Dès la fin de l’opération après la mise en location, nous vous orientons vers un expert comptable pour optimiser vos revenus fonciers et la fiscalité à long terme.

9 480 €

Loyer annuel

480 €

Charges de copropriété

210 €

Taxe foncière

5.35 %

Rendement brut

Rencontrer un conseiller immobilier ImAvenir

Nous définissons ensemble vos objectifs afin de concevoir un investissement locatif qui vous ressemble

Prendre rendez-vous

Newsletter ImAvenir

Rejoindre notre newsletter

Recevez tous les mois le meilleur de l’investissement locatif directement dans votre boite mail.

En vous inscrivant, vous acceptez de recevoir par e-mail les actualités et conseils d’ImAvenir sur l’investissement locatif. Pour en savoir plus sur la gestion de vos données, consultez notre politique de confidentialité.