295 845 €

Budget global

23 400 €

Loyer annuel

8.31 %

Rendement brut

Le brief

Benjamin est family officer : il maîtrise parfaitement les mécanismes de placement et de gestion patrimoniale. Pour son projet d’investissement locatif, il a toutefois choisi de déléguer l’ensemble du processus, dans une optique de gain de temps et d’efficacité.

Mathieu Doliveux

Directeur Associé

Rencontrer un conseiller immobilier ImAvenir

Nous définissons ensemble vos objectifs afin de concevoir un investissement locatif qui vous ressemble

Prendre rendez-vous

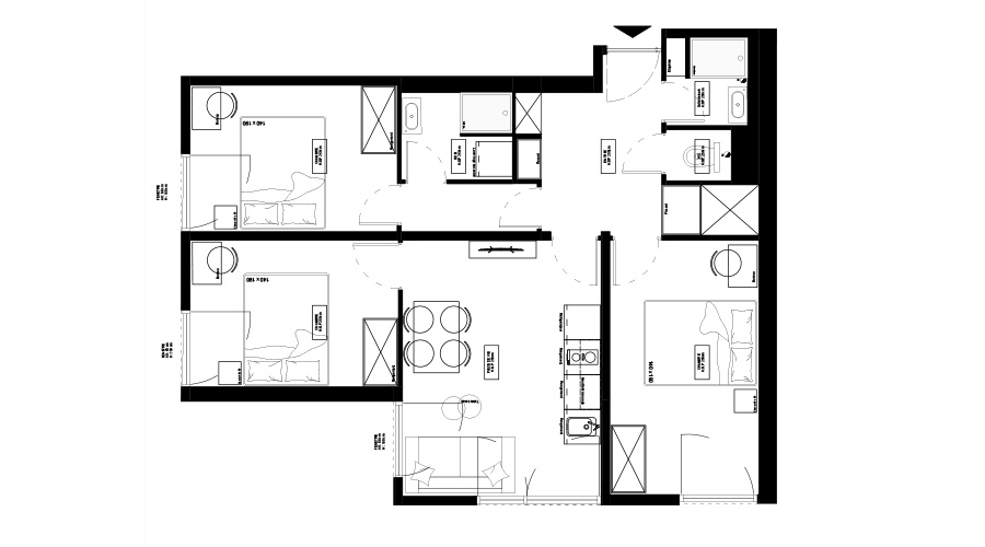
Le bien déniché

Caractéristiques

Typologie

Colocation

Fenêtres

5

Etage

2

Extérieur

Aucun

Chambre

3

Ascenseur

Oui
Rencontrer un conseiller immobilier ImAvenir

Nous définissons ensemble vos objectifs afin de concevoir un investissement locatif qui vous ressemble

Prendre rendez-vous

Les travaux d’optimisation

L’appartement, bien que doté de 60 m², ne comptait à l’origine qu’une seule chambre. L’objectif principal de la rénovation était donc de reconfigurer intelligemment les volumes pour créer trois vraies chambres, tout en maintenant un niveau de confort élevé. Nous avons déplacé la cuisine dans le séjour et cloisonné ce dernier afin de créer deux nouvelles chambres fonctionnelles. Une petite pièce située à l’entrée a été transformée en salle d’eau supplémentaire, permettant désormais au logement de disposer de deux salles d’eau entièrement rénovées, idéales pour une colocation. Les travaux ont également porté sur l’isolation, la modernisation des revêtements et la mise en valeur de la luminosité naturelle, pour offrir un bien moderne, confortable et attractif sur le marché locatif.

daphne

Architecte d’intérieur

Évolution du plan

Avant travaux © Imavenir

Après travaux © Imavenir

Évolution du salon

Avant travaux © Imavenir

Après travaux © Imavenir

Évolution de la chambre

Avant travaux © Imavenir

Après travaux © Imavenir

Évolution de la salle d’eau

Avant travaux © Imavenir

Après travaux © Imavenir

Rencontrer un conseiller immobilier ImAvenir

Nous définissons ensemble vos objectifs afin de concevoir un investissement locatif qui vous ressemble

Prendre rendez-vous

La stratégie financière

Ce projet a largement dépassé les objectifs initiaux fixés par notre client. Grâce à une négociation efficace à l’achat et à une rénovation astucieuse ayant permis d’ajouter deux chambres, l’appartement affiche aujourd’hui une rentabilité nette supérieure à 8 %. Au-delà de la performance locative, le bien a déjà pris de la valeur, et son futur potentiel reste très fort avec l’arrivée prochaine de la ligne 18 du Grand Paris Express, prévue pour 2026.

Budget

N’hésitez pas à nous solliciter pour toute question sur nos prestations ou nos tarifs.

179 000 €

Prix de présentation HAI

- 9 000 €

Prix de négocié HAI

14 280 €

Notaire

3 500 €

Architecture et maîtrise d’ouvrage

78 195 €

Travaux de rénovation

10 000 €

Mobilier et cuisine

19 870 €

Honoraires

295 845 €

Budget total

Rendement

Tout investissement présente un risque de perte en capital total ou partiel. Nos calculs sont des prévisions indicatives qui prennent en compte l’état du marché, les conditions d’acquisition et les modalités de financement. Elles ne sont pas des garanties sur les performances financières de nos produits d’investissement. Dès la fin de l’opération après la mise en location, nous vous orientons vers un expert comptable pour optimiser vos revenus fonciers et la fiscalité à long terme.

23 400 €

Loyer annuel

1 704 €

Charges de copropriété

1 188 €

Taxe foncière

8.31 %

Rendement brut

Rencontrer un conseiller immobilier ImAvenir

Nous définissons ensemble vos objectifs afin de concevoir un investissement locatif qui vous ressemble

Prendre rendez-vous

Newsletter ImAvenir

Rejoindre notre newsletter

Recevez tous les mois le meilleur de l’investissement locatif directement dans votre boite mail.

En vous inscrivant, vous acceptez de recevoir par e-mail les actualités et conseils d’ImAvenir sur l’investissement locatif. Pour en savoir plus sur la gestion de vos données, consultez notre politique de confidentialité.