221 034 €

Budget global

12 000 €

Loyer annuel

5.48 %

Rendement brut

Le brief

Fabien, résidant à Clichy, est à la recherche d'un investissement locatif clé en main à Paris ou dans la première couronne parisienne.

Vincent

Responsable immobilier Paris et première couronne

Rencontrer un conseiller immobilier ImAvenir

Nous définissons ensemble vos objectifs afin de concevoir un investissement locatif qui vous ressemble

Prendre rendez-vous

Le bien déniché

Caractéristiques

Typologie

T2

Fenêtres

2

Etage

6

Extérieur

Balcon

Chambre

1

Ascenseur

Non
Rencontrer un conseiller immobilier ImAvenir

Nous définissons ensemble vos objectifs afin de concevoir un investissement locatif qui vous ressemble

Prendre rendez-vous

Les travaux d’optimisation

Ce logement était déjà bien agencé avec des volumes bien proportionnés pour chaque pièce. Nous avons donc axé notre rénovation sur la modernisation et l'amélioration du confort. Notre première étape a été d'isoler toutes les parois froides, puis nous avons installé une cuisine entièrement équipée pour augmenter la valeur locative. Nous avons également apporté une touche de charme dans la salle d'eau en utilisant du carrelage effet marbre. L'objectif était de maximiser la valeur locative tout en minimisant les modifications de la structure existante.

daphne

Architecte d’intérieur

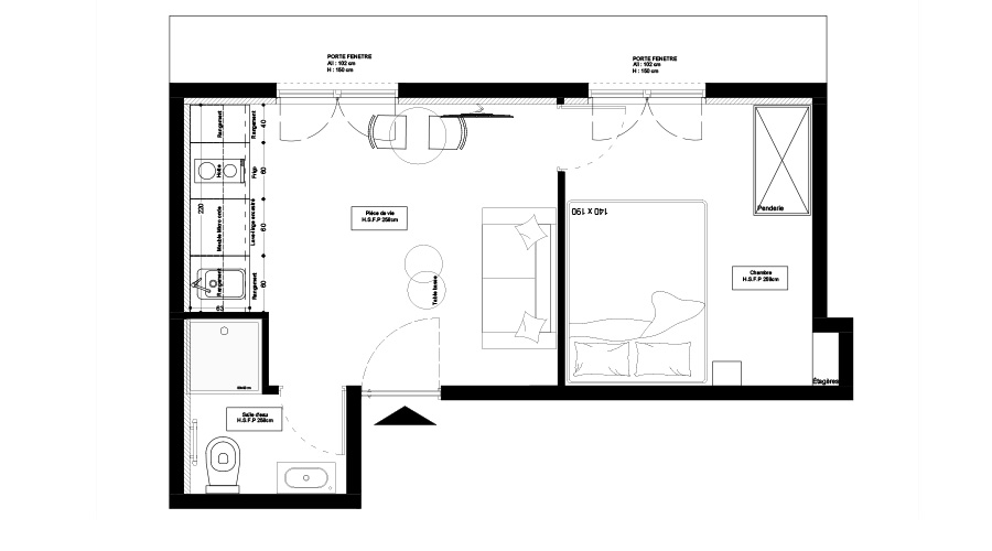
Évolution du plan

Avant travaux © Imavenir

Après travaux © Imavenir

Évolution de la cuisine

Avant travaux © Imavenir

Après travaux © Imavenir

Évolution de la chambre

Avant travaux © Imavenir

Après travaux © Imavenir

Évolution de la salle d’eau

Avant travaux © Imavenir

Après travaux © Imavenir

Rencontrer un conseiller immobilier ImAvenir

Nous définissons ensemble vos objectifs afin de concevoir un investissement locatif qui vous ressemble

Prendre rendez-vous

La stratégie financière

Ce projet offre un excellent rendement dans le secteur tout en répondant aux critères patrimoniaux de notre client. L'appartement est idéalement situé dans la zone de prédilection de notre client, offrant la possibilité d'en faire un pied-à-terre selon ses besoins.

Budget

N’hésitez pas à nous solliciter pour toute question sur nos prestations ou nos tarifs.

157 000 €

Prix de présentation HAI

- 0 €

Prix de négocié HAI

13 188 €

Notaire

2 000 €

Architecture et maîtrise d’ouvrage

27 500 €

Travaux de rénovation

6 500 €

Mobilier et cuisine

14 846 €

Honoraires

221 034 €

Budget total

Rendement

Tout investissement présente un risque de perte en capital total ou partiel. Nos calculs sont des prévisions indicatives qui prennent en compte l’état du marché, les conditions d’acquisition et les modalités de financement. Elles ne sont pas des garanties sur les performances financières de nos produits d’investissement. Dès la fin de l’opération après la mise en location, nous vous orientons vers un expert comptable pour optimiser vos revenus fonciers et la fiscalité à long terme.

12 000 €

Loyer annuel

600 €

Charges de copropriété

400 €

Taxe foncière

5.48 %

Rendement brut

Rencontrer un conseiller immobilier ImAvenir

Nous définissons ensemble vos objectifs afin de concevoir un investissement locatif qui vous ressemble

Prendre rendez-vous

Newsletter ImAvenir

Rejoindre notre newsletter

Recevez tous les mois le meilleur de l’investissement locatif directement dans votre boite mail.

En vous inscrivant, vous acceptez de recevoir par e-mail les actualités et conseils d’ImAvenir sur l’investissement locatif. Pour en savoir plus sur la gestion de vos données, consultez notre politique de confidentialité.