284 630 €

Budget global

13 200 €

Loyer annuel

4.94 %

Rendement brut

Le brief

Notre cliente est expatriée aux États-Unis. Elle recherche une opportunité d'investissement locatif clé en main et souhaite être accompagnée dans son projet tout en déléguant la gestion à distance. Notre service l'intéresse particulièrement car il lui offre la possibilité d'évaluer les appartements sur la base de dossiers complets, évitant ainsi la nécessité de rechercher tous les éléments nécessaires à la prise de décision par elle-même.

Alexandre Bougon

Directeur Associé

Rencontrer un conseiller immobilier ImAvenir

Nous définissons ensemble vos objectifs afin de concevoir un investissement locatif qui vous ressemble

Prendre rendez-vous

Le bien déniché

Caractéristiques

Typologie

T2

Fenêtres

4

Etage

2

Extérieur

Aucun

Chambre

1

Ascenseur

Non
Rencontrer un conseiller immobilier ImAvenir

Nous définissons ensemble vos objectifs afin de concevoir un investissement locatif qui vous ressemble

Prendre rendez-vous

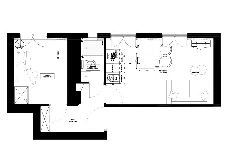
Les travaux d’optimisation

L'objectif des travaux est de créer une véritable chambre dans cet appartement en déplaçant la cuisine dans le séjour. Cette réorganisation permet d'optimiser l'aménagement, sans venir à nouveau cloisonner. Un bar équipé de deux chaises hautes sert à la fois de coin repas et de séparation entre la cuisine ouverte et le salon, offrant ainsi une solution pratique et esthétique.

daphne

Architecte d’intérieur

Évolution du plan

Avant travaux © Imavenir

Après travaux © Imavenir

Évolution du salon

Avant travaux © Imavenir

Après travaux © Imavenir

Évolution de la salle d’eau

Avant travaux © Imavenir

Après travaux © Imavenir

Évolution de la chambre

Avant travaux © Imavenir

Après travaux © Imavenir

Rencontrer un conseiller immobilier ImAvenir

Nous définissons ensemble vos objectifs afin de concevoir un investissement locatif qui vous ressemble

Prendre rendez-vous

La stratégie financière

Il s'agit d'un projet d'investissement locatif répondant parfaitement aux attentes de notre cliente en matière de sécurité et de rentabilité. Ce placement bien pensé, et géré à distance, contribuera à accroître le patrimoine de notre cliente.

Budget

N’hésitez pas à nous solliciter pour toute question sur nos prestations ou nos tarifs.

207 000 €

Prix de présentation HAI

- 0 €

Prix de négocié HAI

17 388 €

Notaire

2 000 €

Architecture et maîtrise d’ouvrage

31 625 €

Travaux de rénovation

7 500 €

Mobilier et cuisine

19 117 €

Honoraires

284 630 €

Budget total

Rendement

Tout investissement présente un risque de perte en capital total ou partiel. Nos calculs sont des prévisions indicatives qui prennent en compte l’état du marché, les conditions d’acquisition et les modalités de financement. Elles ne sont pas des garanties sur les performances financières de nos produits d’investissement. Dès la fin de l’opération après la mise en location, nous vous orientons vers un expert comptable pour optimiser vos revenus fonciers et la fiscalité à long terme.

13 200 €

Loyer annuel

780 €

Charges de copropriété

300 €

Taxe foncière

4.94 %

Rendement brut

Rencontrer un conseiller immobilier ImAvenir

Nous définissons ensemble vos objectifs afin de concevoir un investissement locatif qui vous ressemble

Prendre rendez-vous

Newsletter ImAvenir

Rejoindre notre newsletter

Recevez tous les mois le meilleur de l’investissement locatif directement dans votre boite mail.

En vous inscrivant, vous acceptez de recevoir par e-mail les actualités et conseils d’ImAvenir sur l’investissement locatif. Pour en savoir plus sur la gestion de vos données, consultez notre politique de confidentialité.