176 704 €

Budget global

9 960 €

Loyer annuel

5.47 %

Rendement brut

Le brief

Geoffroy est contrôleur de gestion dans l'industrie métallurgique. Il souhaite faire un investissement locatif clé en main à Clichy, à Asnières ou à Courbevoie.

Mathieu Doliveux

Directeur Associé

Rencontrer un conseiller immobilier ImAvenir

Nous définissons ensemble vos objectifs afin de concevoir un investissement locatif qui vous ressemble

Prendre rendez-vous

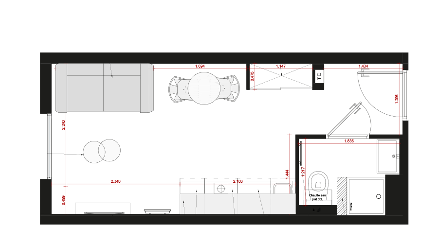
Le bien déniché

Caractéristiques

Typologie

Studio

Fenêtres

1

Etage

6

Extérieur

Aucun

Chambre

Ascenseur

Oui
Rencontrer un conseiller immobilier ImAvenir

Nous définissons ensemble vos objectifs afin de concevoir un investissement locatif qui vous ressemble

Prendre rendez-vous

Les travaux d’optimisation

Cet appartement nécessitait essentiellement de travaux de rafraichissement. Nous avons rénové la salle d'eau ainsi que les murs et les sols de l'intégralité des pièces. Une nouvelle cuisine a également été installée pour augmenter la valeur locative et attirer des jeunes actifs qui cherchent un peu plus de confort que pendant leur années d'études.

agathe

Architecte d’intérieur

Évolution du plan

Avant travaux © Imavenir

Après travaux © Imavenir

Évolution de la cuisine

Avant travaux © Imavenir

Après travaux © Imavenir

Évolution de la salle d’eau

Avant travaux © Imavenir

Après travaux © Imavenir

Rencontrer un conseiller immobilier ImAvenir

Nous définissons ensemble vos objectifs afin de concevoir un investissement locatif qui vous ressemble

Prendre rendez-vous

La stratégie financière

Ce projet offre un bon rendement pour la zone géographique choisie, plutôt patrimoniale habituellement. Le projet permet à notre investisseur de faire un bon placement financier tout en espérant des plus-values.

Budget

N’hésitez pas à nous solliciter pour toute question sur nos prestations ou nos tarifs.

129 000 €

Prix de présentation HAI

- 0 €

Prix de négocié HAI

10 836 €

Notaire

1 500 €

Architecture et maîtrise d’ouvrage

17 000 €

Travaux de rénovation

6 500 €

Mobilier et cuisine

11 868 €

Honoraires

176 704 €

Budget total

Rendement

Tout investissement présente un risque de perte en capital total ou partiel. Nos calculs sont des prévisions indicatives qui prennent en compte l’état du marché, les conditions d’acquisition et les modalités de financement. Elles ne sont pas des garanties sur les performances financières de nos produits d’investissement. Dès la fin de l’opération après la mise en location, nous vous orientons vers un expert comptable pour optimiser vos revenus fonciers et la fiscalité à long terme.

9 960 €

Loyer annuel

708 €

Charges de copropriété

167 €

Taxe foncière

5.47 %

Rendement brut

Rencontrer un conseiller immobilier ImAvenir

Nous définissons ensemble vos objectifs afin de concevoir un investissement locatif qui vous ressemble

Prendre rendez-vous

Newsletter ImAvenir

Rejoindre notre newsletter

Recevez tous les mois le meilleur de l’investissement locatif directement dans votre boite mail.

En vous inscrivant, vous acceptez de recevoir par e-mail les actualités et conseils d’ImAvenir sur l’investissement locatif. Pour en savoir plus sur la gestion de vos données, consultez notre politique de confidentialité.