307 503 €

Budget global

1 100 €

Loyer annuel

4.54 %

Rendement brut

Le brief

Jean-Claude cherchait à réaliser un investissement locatif clé en main rapidement, avant la fin de l'année. En effet, son prêt immobilier pour sa résidence principale arrivait à échéance fin novembre, lui redonnant ainsi sa capacité d'emprunt.

Mathieu Doliveux

Directeur Associé

Rencontrer un conseiller immobilier ImAvenir

Nous définissons ensemble vos objectifs afin de concevoir un investissement locatif qui vous ressemble

Prendre rendez-vous

Le bien déniché

Caractéristiques

Typologie

T2

Fenêtres

3

Etage

1

Extérieur

Aucun

Chambre

1

Ascenseur

Non
Rencontrer un conseiller immobilier ImAvenir

Nous définissons ensemble vos objectifs afin de concevoir un investissement locatif qui vous ressemble

Prendre rendez-vous

Les travaux d’optimisation

Ce projet de rénovation visait principalement à ouvrir l'espace et à éliminer les cloisons superflues. Nous avons donc ouvert la cuisine sur le séjour afin de créer un espace de vie plus lumineux et plus convivial. De plus, nous avons optimisé l'espace en fusionnant la salle d'eau avec les toilettes, ce qui a permis de gagner en espace de rangement. Pour un jeune actif ou un jeune couple, la séparation des toilettes de la salle d'eau n'est pas un critère de recherche, alors qu'un grand dressing peut attirer davantage de locataires. Nous avons également intégré d'autres équipements qui augmentent la valeur locative comme un coin télévision et un lave-linge.

daphne

Architecte d’intérieur

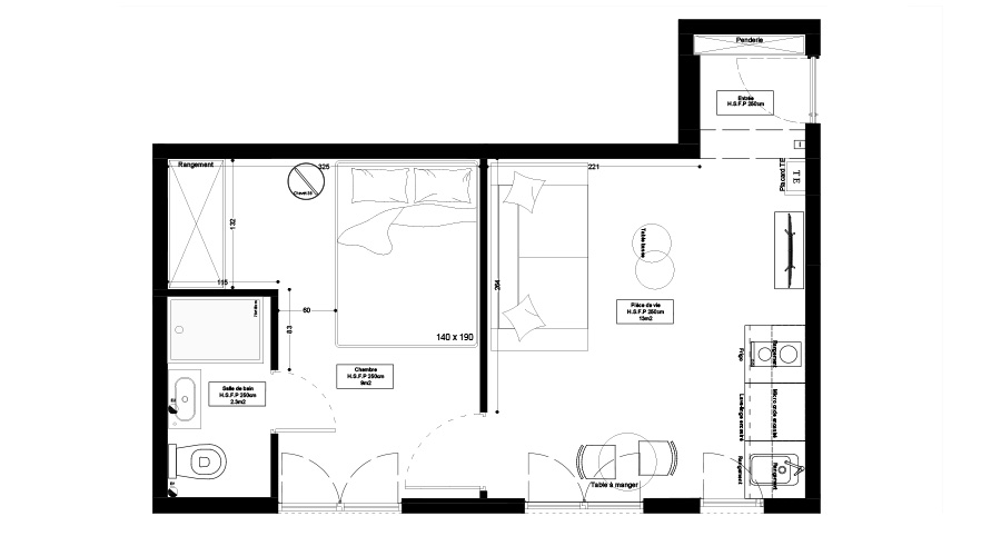
Évolution du plan

Avant travaux © Imavenir

Après travaux © Imavenir

Évolution du salon

Avant travaux © Imavenir

Après travaux © Imavenir

Évolution de la salle d’eau

Avant travaux © Imavenir

Après travaux © Imavenir

Évolution de la chambre

Avant travaux © Imavenir

Après travaux © Imavenir

Rencontrer un conseiller immobilier ImAvenir

Nous définissons ensemble vos objectifs afin de concevoir un investissement locatif qui vous ressemble

Prendre rendez-vous

La stratégie financière

Malgré son emplacement dans une zone patrimoniale, ce projet offre un rendement plus que satisfaisant. De plus, il présente l'avantage d'une forte sécurité locative, étant donné la facilité à trouver des locataires et la stabilité de la valeur foncière dans le quartier.

Budget

N’hésitez pas à nous solliciter pour toute question sur nos prestations ou nos tarifs.

228 900 €

Prix de présentation HAI

- 0 €

Prix de négocié HAI

16 500 €

Notaire

2 000 €

Architecture et maîtrise d’ouvrage

31 950 €

Travaux de rénovation

7 500 €

Mobilier et cuisine

20 653 €

Honoraires

307 503 €

Budget total

Rendement

Tout investissement présente un risque de perte en capital total ou partiel. Nos calculs sont des prévisions indicatives qui prennent en compte l’état du marché, les conditions d’acquisition et les modalités de financement. Elles ne sont pas des garanties sur les performances financières de nos produits d’investissement. Dès la fin de l’opération après la mise en location, nous vous orientons vers un expert comptable pour optimiser vos revenus fonciers et la fiscalité à long terme.

1 100 €

Loyer annuel

600 €

Charges de copropriété

324 €

Taxe foncière

4.54 %

Rendement brut

Rencontrer un conseiller immobilier ImAvenir

Nous définissons ensemble vos objectifs afin de concevoir un investissement locatif qui vous ressemble

Prendre rendez-vous

Newsletter ImAvenir

Rejoindre notre newsletter

Recevez tous les mois le meilleur de l’investissement locatif directement dans votre boite mail.

En vous inscrivant, vous acceptez de recevoir par e-mail les actualités et conseils d’ImAvenir sur l’investissement locatif. Pour en savoir plus sur la gestion de vos données, consultez notre politique de confidentialité.