224 436 €

Budget global

11 400 €

Loyer annuel

5.41 %

Rendement brut

Le brief

Notre client, qui travaille dans la tech et les services digitaux, envisage plusieurs investissements locatifs clés en main et recherche un accompagnement avisé de la part de son chasseur immobilier afin de saisir les meilleures opportunités parisiennes.

Mathieu Doliveux

Directeur Associé

Rencontrer un conseiller immobilier ImAvenir

Nous définissons ensemble vos objectifs afin de concevoir un investissement locatif qui vous ressemble

Prendre rendez-vous

Le bien déniché

Caractéristiques

Typologie

Studio

Fenêtres

2

Etage

3

Extérieur

Aucun

Chambre

Ascenseur

Oui
Rencontrer un conseiller immobilier ImAvenir

Nous définissons ensemble vos objectifs afin de concevoir un investissement locatif qui vous ressemble

Prendre rendez-vous

Les travaux d’optimisation

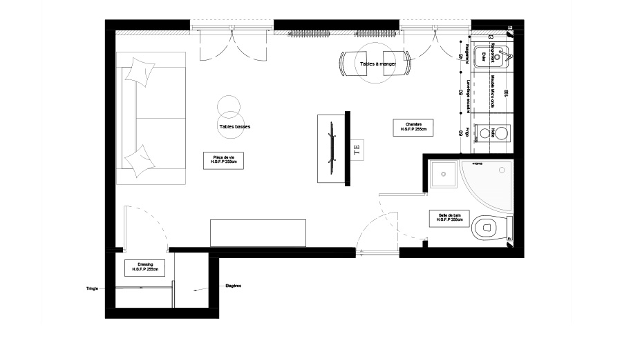
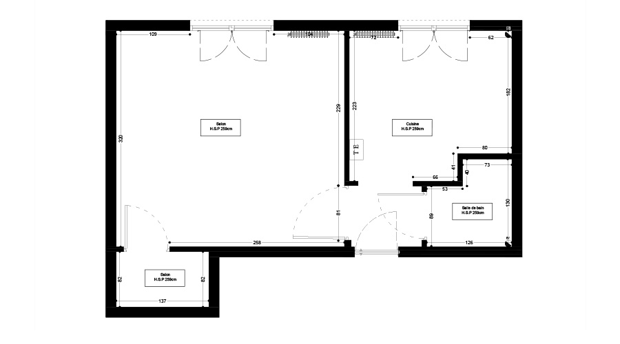
Le principal défi de cette rénovation résidait dans la nécessité d'optimiser l'espace pour accroître la luminosité et le confort. Une partie de la cloison centrale a été démolie afin de créer un espace repas, fusionnant ainsi la luminosité des deux fenêtres en une seule pièce spacieuse. De plus, la salle d'eau a été entièrement rénovée pour accueillir une véritable cabine de douche ainsi qu'un meuble vasque, augmentant ainsi significativement la valeur locative. En bonus, un débarras situé à l'arrière du logement a été transformé en un véritable dressing, un aménagement qui saura séduire de nombreux locataires potentiels.

daphne

Architecte d’intérieur

Évolution du plan

Avant travaux © Imavenir

Après travaux © Imavenir

Évolution du salon

Avant travaux © Imavenir

Après travaux © Imavenir

Évolution de la salle d’eau

Avant travaux © Imavenir

Après travaux © Imavenir

Rencontrer un conseiller immobilier ImAvenir

Nous définissons ensemble vos objectifs afin de concevoir un investissement locatif qui vous ressemble

Prendre rendez-vous

La stratégie financière

Cet investissement répond parfaitement aux attentes de notre client en termes de rentabilité pour cette zone. De plus, il s'agit d'une opération très sécurisée, et la proximité du métro garantit une facilité de location pour cet appartement.

Budget

N’hésitez pas à nous solliciter pour toute question sur nos prestations ou nos tarifs.

172 000 €

Prix de présentation HAI

- 10 000 €

Prix de négocié HAI

13 608 €

Notaire

2 000 €

Architecture et maîtrise d’ouvrage

25 000 €

Travaux de rénovation

7 500 €

Mobilier et cuisine

14 328 €

Honoraires

224 436 €

Budget total

Rendement

Tout investissement présente un risque de perte en capital total ou partiel. Nos calculs sont des prévisions indicatives qui prennent en compte l’état du marché, les conditions d’acquisition et les modalités de financement. Elles ne sont pas des garanties sur les performances financières de nos produits d’investissement. Dès la fin de l’opération après la mise en location, nous vous orientons vers un expert comptable pour optimiser vos revenus fonciers et la fiscalité à long terme.

11 400 €

Loyer annuel

1 200 €

Charges de copropriété

300 €

Taxe foncière

5.41 %

Rendement brut

Rencontrer un conseiller immobilier ImAvenir

Nous définissons ensemble vos objectifs afin de concevoir un investissement locatif qui vous ressemble

Prendre rendez-vous

Newsletter ImAvenir

Rejoindre notre newsletter

Recevez tous les mois le meilleur de l’investissement locatif directement dans votre boite mail.

En vous inscrivant, vous acceptez de recevoir par e-mail les actualités et conseils d’ImAvenir sur l’investissement locatif. Pour en savoir plus sur la gestion de vos données, consultez notre politique de confidentialité.