144 677 €

Budget global

10 200 €

Loyer annuel

7.44 %

Rendement brut

Le brief

Laurence, gestionnaire dans un centre de formation, souhaite investir dans l’immobilier locatif sans y consacrer trop de temps. Son objectif ? Un investissement locatif clés en main, sécurisé et accessible, avec un prix d’achat maîtrisé.

Vincent

Responsable immobilier Paris et première couronne

Recontrer un conseiller immobilier ImAvenir

Nous définissons ensemble vos objectifs afin de concevoir un investissement locatif qui vous ressemble

Prendre rendez-vous

Le bien déniché

Caractéristiques

Typologie

Studios

Fenêtres

3

Etage

3

Extérieur

aucun

Chambre

Ascenseur

Non
Recontrer un conseiller immobilier ImAvenir

Nous définissons ensemble vos objectifs afin de concevoir un investissement locatif qui vous ressemble

Prendre rendez-vous

Les travaux d’optimisation

Pour optimiser le bien et maximiser son attractivité locative, nous avons entrepris une rénovation ciblée. L’objectif ? Améliorer l’efficacité énergétique, apporter plus de clarté et moderniser l’ensemble. Les revêtements ont été remis au goût du jour pour un intérieur plus contemporain et accueillant. Dans la salle d’eau et la cuisine, des équipements de confort ont été ajoutés pour répondre aux attentes des locataires. Un soin particulier a également été apporté aux espaces de rangement, un élément clé qui favorise la rétention des locataires sur le long terme.

daphne

Architecte d’intérieur

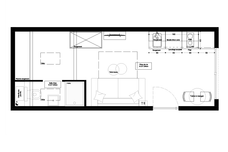
Évolution du plan

Avant travaux © Imavenir

Après travaux © Imavenir

Évolution du salon

Avant travaux © Imavenir

Après travaux © Imavenir

Évolution de la salle d’eau

Avant travaux © Imavenir

Après travaux © Imavenir

Recontrer un conseiller immobilier ImAvenir

Nous définissons ensemble vos objectifs afin de concevoir un investissement locatif qui vous ressemble

Prendre rendez-vous

La stratégie financière

Grâce aux travaux réalisés et aux faibles charges de copropriété, cet investissement offre un excellent rendement locatif. L’optimisation du bien permet d’attirer des locataires fiables tout en garantissant une gestion simplifiée. Au-delà de la rentabilité immédiate, les perspectives de valorisation sont particulièrement prometteuses. L’automatisation de la ligne 13 devrait renforcer l’attractivité de cet axe, aussi bien pour les résidents que pour les entreprises. À l’horizon 2030, l’arrivée de la ligne 15 du Grand Paris Express à la station Les Agnettes viendra encore dynamiser le secteur, offrant à Laurence un potentiel de plus-value intéressant sur le long terme.

Budget

N’hésitez pas à nous solliciter pour toute question sur nos prestations ou nos tarifs.

90 000 €

Prix de présentation HAI

- 0 €

Prix de négocié HAI

7 560 €

Notaire

2 000 €

Architecture et maîtrise d’ouvrage

27 900 €

Travaux de rénovation

7 500 €

Mobilier et cuisine

9 717 €

Honoraires

144 677 €

Budget total

Rendement

Tout investissement présente un risque de perte en capital total ou partiel. Nos calculs sont des prévisions indicatives qui prennent en compte l’état du marché, les conditions d’acquisition et les modalités de financement. Elles ne sont pas des garanties sur les performances financières de nos produits d’investissement. Dès la fin de l’opération après la mise en location, nous vous orientons vers un expert comptable pour optimiser vos revenus fonciers et la fiscalité à long terme.

10 200 €

Loyer annuel

156 €

Charges de copropriété

500 €

Taxe foncière

7.44 %

Rendement brut

Recontrer un conseiller immobilier ImAvenir

Nous définissons ensemble vos objectifs afin de concevoir un investissement locatif qui vous ressemble

Prendre rendez-vous

Newsletter ImAvenir

Rejoindre notre newsletter

Recevez tous les mois le meilleur de l’investissement locatif directement dans votre boite mail.

En vous inscrivant, vous acceptez de recevoir par e-mail les actualités et conseils d’ImAvenir sur l’investissement locatif. Pour en savoir plus sur la gestion de vos données, consultez notre politique de confidentialité.