251 062 €

Budget global

13 200 €

Loyer annuel

5.84 %

Rendement brut

Le brief

Loubna réside au Royaume-Uni et travaille dans le secteur bancaire. Elle souhaite réaliser un investissement locatif clés en main dans la région parisienne.

Mathieu Doliveux

Directeur Associé

Rencontrer un conseiller immobilier ImAvenir

Nous définissons ensemble vos objectifs afin de concevoir un investissement locatif qui vous ressemble

Prendre rendez-vous

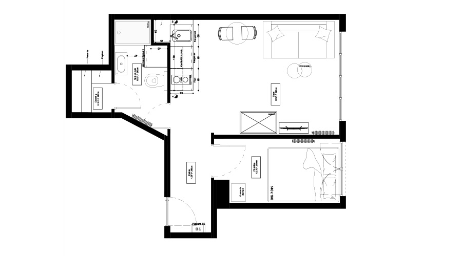
Le bien déniché

Caractéristiques

Typologie

T2

Fenêtres

2

Etage

1

Extérieur

Balcon

Chambre

3

Ascenseur

Non
Rencontrer un conseiller immobilier ImAvenir

Nous définissons ensemble vos objectifs afin de concevoir un investissement locatif qui vous ressemble

Prendre rendez-vous

Les travaux d’optimisation

Cet appartement était dans un état très dégradé, ayant été occupé par une personne atteinte du syndrome de Diogène. Après l'intervention d'une entreprise spécialisée pour enlever tous les déchets, nous avons entrepris un nettoyage en profondeur, du sol au plafond, suivi de la rénovation des plâtres. Ensuite, nous avons remplacé les fenêtres et amélioré l'isolation. Nous avons également déplacé la cuisine dans le séjour afin de créer une petite chambre supplémentaire. Bien que cette chambre soit modeste en taille, elle ajoutera de la valeur à l'appartement et le rendra habitable pour un jeune couple.

daphne

Architecte d’intérieur

Évolution du plan

Avant travaux © Imavenir

Après travaux © Imavenir

Évolution du salon

Avant travaux © Imavenir

Après travaux © Imavenir

Évolution de la salle d’eau

Avant travaux © Imavenir

Après travaux © Imavenir

Évolution de la chambre

Avant travaux © Imavenir

Après travaux © Imavenir

Rencontrer un conseiller immobilier ImAvenir

Nous définissons ensemble vos objectifs afin de concevoir un investissement locatif qui vous ressemble

Prendre rendez-vous

La stratégie financière

Ce projet offre un bon rendement pour le secteur. Il répond aux critères de notre cliente concernant le montant de son apport. De plus, il s'agit d'un projet très sécurisé qui permettra de faire fonctionner l'effet de levier patrimonial grâce au crédit.

Budget

N’hésitez pas à nous solliciter pour toute question sur nos prestations ou nos tarifs.

175 000 €

Prix de présentation HAI

- 0 €

Prix de négocié HAI

14 700 €

Notaire

2 000 €

Architecture et maîtrise d’ouvrage

35 000 €

Travaux de rénovation

7 500 €

Mobilier et cuisine

16 862 €

Honoraires

251 062 €

Budget total

Rendement

Tout investissement présente un risque de perte en capital total ou partiel. Nos calculs sont des prévisions indicatives qui prennent en compte l’état du marché, les conditions d’acquisition et les modalités de financement. Elles ne sont pas des garanties sur les performances financières de nos produits d’investissement. Dès la fin de l’opération après la mise en location, nous vous orientons vers un expert comptable pour optimiser vos revenus fonciers et la fiscalité à long terme.

13 200 €

Loyer annuel

1 680 €

Charges de copropriété

353 €

Taxe foncière

5.84 %

Rendement brut

Rencontrer un conseiller immobilier ImAvenir

Nous définissons ensemble vos objectifs afin de concevoir un investissement locatif qui vous ressemble

Prendre rendez-vous

Newsletter ImAvenir

Rejoindre notre newsletter

Recevez tous les mois le meilleur de l’investissement locatif directement dans votre boite mail.

En vous inscrivant, vous acceptez de recevoir par e-mail les actualités et conseils d’ImAvenir sur l’investissement locatif. Pour en savoir plus sur la gestion de vos données, consultez notre politique de confidentialité.