267 816 €

Budget global

12 600 €

Loyer annuel

5.01 %

Rendement brut

Le brief

Julien est expatrié à Shanghai et cherche à faire plusieurs petites opérations immobilières à Paris. Il a choisi l'investissement locatif clé en main avec ImAvenir pour déléguer son projet à distance.

Mathieu Doliveux

Directeur Associé

Rencontrer un conseiller immobilier ImAvenir

Nous définissons ensemble vos objectifs afin de concevoir un investissement locatif qui vous ressemble

Prendre rendez-vous

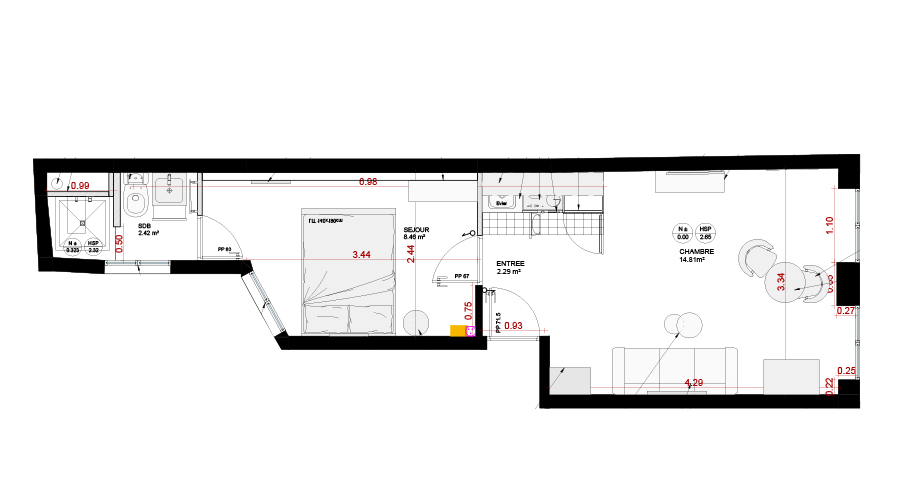
Le bien déniché

Caractéristiques

Typologie

T2

Fenêtres

4

Etage

4

Extérieur

Aucun

Chambre

Ascenseur

Non
Rencontrer un conseiller immobilier ImAvenir

Nous définissons ensemble vos objectifs afin de concevoir un investissement locatif qui vous ressemble

Prendre rendez-vous

Les travaux d’optimisation

Dans cet appartement, l'ancienne cuisine et l'ancienne salle d'eau étaient mal situées et ne permettaient pas d'avoir une vrai chambre. Il fallait installer le lit dans le séjour. Nous avons donc réagencé les espaces en retirant la cloison de l'entrée et en installant la nouvelle cuisine dans le séjour. Cela a permis créer un espace nuit dans la seconde pièce avec sa salle d'eau attenante.

agathe

Architecte d’intérieur

Évolution du plan

Avant travaux © Imavenir

Après travaux © Imavenir

Évolution du salon

Avant travaux © Imavenir

Après travaux © Imavenir

Évolution de la chambre

Avant travaux © Imavenir

Après travaux © Imavenir

Évolution de la salle d’eau

Avant travaux © Imavenir

Après travaux © Imavenir

Rencontrer un conseiller immobilier ImAvenir

Nous définissons ensemble vos objectifs afin de concevoir un investissement locatif qui vous ressemble

Prendre rendez-vous

La stratégie financière

Ce projet permet d'atteindre le rendement cherché par notre investisseur. Les projets du Grand Paris Express avec la ligne 15 et l'ouverture du RER E vont doper les prix de l'immobilier dans le secteur. Notre client réalisera probablement des plus-values intéressantes.

Budget

N’hésitez pas à nous solliciter pour toute question sur nos prestations ou nos tarifs.

192 000 €

Prix de présentation HAI

- 0 €

Prix de négocié HAI

15 770 €

Notaire

1 500 €

Architecture et maîtrise d’ouvrage

28 000 €

Travaux de rénovation

7 000 €

Mobilier et cuisine

17 587 €

Honoraires

267 816 €

Budget total

Rendement

Tout investissement présente un risque de perte en capital total ou partiel. Nos calculs sont des prévisions indicatives qui prennent en compte l’état du marché, les conditions d’acquisition et les modalités de financement. Elles ne sont pas des garanties sur les performances financières de nos produits d’investissement. Dès la fin de l’opération après la mise en location, nous vous orientons vers un expert comptable pour optimiser vos revenus fonciers et la fiscalité à long terme.

12 600 €

Loyer annuel

600 €

Charges de copropriété

185 €

Taxe foncière

5.01 %

Rendement brut

Rencontrer un conseiller immobilier ImAvenir

Nous définissons ensemble vos objectifs afin de concevoir un investissement locatif qui vous ressemble

Prendre rendez-vous

Newsletter ImAvenir

Rejoindre notre newsletter

Recevez tous les mois le meilleur de l’investissement locatif directement dans votre boite mail.

En vous inscrivant, vous acceptez de recevoir par e-mail les actualités et conseils d’ImAvenir sur l’investissement locatif. Pour en savoir plus sur la gestion de vos données, consultez notre politique de confidentialité.