198 599 €

Budget global

10 200 €

Loyer annuel

5.78 %

Rendement brut

Le brief

Mathieu est commercial dans l'industrie agro-alimentaire. Pour son deuxième projet d'investissement locatif clé en main avec ImAvenir, il cherchait à obtenir une bonne rentabilité dans une ville de première couronne à l'Ouest de Paris.

Alexandre Bougon

Directeur Associé

Rencontrer un conseiller immobilier ImAvenir

Nous définissons ensemble vos objectifs afin de concevoir un investissement locatif qui vous ressemble

Prendre rendez-vous

Le bien déniché

Caractéristiques

Typologie

Studio

Fenêtres

3

Etage

RDC

Extérieur

Aucun extérieur

Chambre

Ascenseur

Non
Rencontrer un conseiller immobilier ImAvenir

Nous définissons ensemble vos objectifs afin de concevoir un investissement locatif qui vous ressemble

Prendre rendez-vous

Les travaux d’optimisation

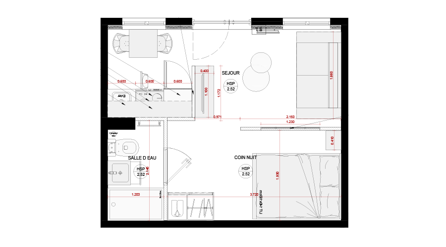
L'objectif de la rénovation de ce studio était de créer un espace nuit. On augmente ainsi l'attractivité du bien en ayant un lit double plutôt qu'un canapé-lit. Nous avons monté une cloison avec verrière pour diviser la pièce de séjour. Côté cuisine, la cloison a été remplacée par un demi-mur pour créer un effet de volume (et compenser la verrière). Enfin, le sens d'ouverture de la porte menant à la salle d'eau a été inversé pour éviter d'encombrer la pièce.

agathe

Architecte d’intérieur

Évolution du plan

Avant travaux © Imavenir

Après travaux © Imavenir

Évolution du salon

Avant travaux © Imavenir

Après travaux © Imavenir

Évolution de la cuisine

Avant travaux © Imavenir

Après travaux © Imavenir

Rencontrer un conseiller immobilier ImAvenir

Nous définissons ensemble vos objectifs afin de concevoir un investissement locatif qui vous ressemble

Prendre rendez-vous

La stratégie financière

Ce projet présente un rendement très satisfaisant pour la première couronne parisienne, tout en étant sécurisé. Il sera facile de trouver des locataires et le bien se louera toute l'année. En outre, les projets du Grand Paris express qui arriveront à Colombes permettront très probablement de générer des plus-values.

Budget

N’hésitez pas à nous solliciter pour toute question sur nos prestations ou nos tarifs.

148 000 €

Prix de présentation HAI

- 8 000 €

Prix de négocié HAI

11 760 €

Notaire

2 000 €

Architecture et maîtrise d’ouvrage

25 000 €

Travaux de rénovation

6 500 €

Mobilier et cuisine

13 339 €

Honoraires

198 599 €

Budget total

Rendement

Tout investissement présente un risque de perte en capital total ou partiel. Nos calculs sont des prévisions indicatives qui prennent en compte l’état du marché, les conditions d’acquisition et les modalités de financement. Elles ne sont pas des garanties sur les performances financières de nos produits d’investissement. Dès la fin de l’opération après la mise en location, nous vous orientons vers un expert comptable pour optimiser vos revenus fonciers et la fiscalité à long terme.

10 200 €

Loyer annuel

444 €

Charges de copropriété

374 €

Taxe foncière

5.78 %

Rendement brut

Rencontrer un conseiller immobilier ImAvenir

Nous définissons ensemble vos objectifs afin de concevoir un investissement locatif qui vous ressemble

Prendre rendez-vous

Newsletter ImAvenir

Rejoindre notre newsletter

Recevez tous les mois le meilleur de l’investissement locatif directement dans votre boite mail.

En vous inscrivant, vous acceptez de recevoir par e-mail les actualités et conseils d’ImAvenir sur l’investissement locatif. Pour en savoir plus sur la gestion de vos données, consultez notre politique de confidentialité.