217 101 €

Budget global

11 400 €

Loyer annuel

5.59 %

Rendement brut

Le brief

Mathieu est commercial dans l'industrie agro-alimentaire. Il souhaitait réaliser deux projets d'investissement locatif clé en main en même temps avec ImAvenir.

Alexandre Bougon

Directeur Associé

Rencontrer un conseiller immobilier ImAvenir

Nous définissons ensemble vos objectifs afin de concevoir un investissement locatif qui vous ressemble

Prendre rendez-vous

Le bien déniché

Caractéristiques

Typologie

T2

Fenêtres

2

Etage

2

Extérieur

Aucun

Chambre

Ascenseur

Non
Rencontrer un conseiller immobilier ImAvenir

Nous définissons ensemble vos objectifs afin de concevoir un investissement locatif qui vous ressemble

Prendre rendez-vous

Les travaux d’optimisation

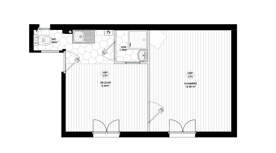
Nous avons optimisé cet appartement dans l'optique de réduire la surface de la chambre pour augmenter celle du séjour, l'idée étant d'installer un coin salon et une cuisine totalement équipée. La salle d'eau a été déplacée dans la chambre pour laisser de la place à des plans de travail et permettre la création d'un sas d'entrée. Nous avons légèrement décalé la cloison séparant le séjour et de la chambre et inversé l'ouverture de la porte pour ne pas buter sur le lit. Les toilettes ont enfin été séparées du séjour pour apporter plus d'intimité.

agathe

Architecte d’intérieur

Évolution du plan

Avant travaux © Imavenir

Après travaux © Imavenir

Évolution du salon

Avant travaux © Imavenir

Après travaux © Imavenir

Évolution de la salle d’eau

Avant travaux © Imavenir

Après travaux © Imavenir

Évolution de la chambre

Avant travaux © Imavenir

Après travaux © Imavenir

Rencontrer un conseiller immobilier ImAvenir

Nous définissons ensemble vos objectifs afin de concevoir un investissement locatif qui vous ressemble

Prendre rendez-vous

La stratégie financière

Ce projet présente un rendement très satisfaisant pour la première couronne parisienne, tout en étant sécurisé. Il sera facile de trouver des locataires et le bien se louera toute l'année. En outre, les projets du Grand Paris express qui arriveront à Puteaux permettront très probablement de générer des plus-values.

Budget

N’hésitez pas à nous solliciter pour toute question sur nos prestations ou nos tarifs.

160 000 €

Prix de présentation HAI

- 0 €

Prix de négocié HAI

13 440 €

Notaire

2 000 €

Architecture et maîtrise d’ouvrage

25 000 €

Travaux de rénovation

7 500 €

Mobilier et cuisine

14 972 €

Honoraires

217 101 €

Budget total

Rendement

Tout investissement présente un risque de perte en capital total ou partiel. Nos calculs sont des prévisions indicatives qui prennent en compte l’état du marché, les conditions d’acquisition et les modalités de financement. Elles ne sont pas des garanties sur les performances financières de nos produits d’investissement. Dès la fin de l’opération après la mise en location, nous vous orientons vers un expert comptable pour optimiser vos revenus fonciers et la fiscalité à long terme.

11 400 €

Loyer annuel

1 020 €

Charges de copropriété

200 €

Taxe foncière

5.59 %

Rendement brut

Rencontrer un conseiller immobilier ImAvenir

Nous définissons ensemble vos objectifs afin de concevoir un investissement locatif qui vous ressemble

Prendre rendez-vous

Newsletter ImAvenir

Rejoindre notre newsletter

Recevez tous les mois le meilleur de l’investissement locatif directement dans votre boite mail.

En vous inscrivant, vous acceptez de recevoir par e-mail les actualités et conseils d’ImAvenir sur l’investissement locatif. Pour en savoir plus sur la gestion de vos données, consultez notre politique de confidentialité.