283 192 €

Budget global

14 400 €

Loyer annuel

5.4 %

Rendement brut

Le brief

Nicolas souhaite réaliser un deuxième investissement locatif clé en main avec ImAvenir. Il voudrait dénicher une opportunité aussi attrayante que la première, idéalement dans le même secteur que pour le premier projet.

Mathieu Doliveux

Directeur Associé

Rencontrer un conseiller immobilier ImAvenir

Nous définissons ensemble vos objectifs afin de concevoir un investissement locatif qui vous ressemble

Prendre rendez-vous

Le bien déniché

Caractéristiques

Typologie

T2

Fenêtres

2

Etage

RDC

Extérieur

Aucun

Chambre

1

Ascenseur

Non
Rencontrer un conseiller immobilier ImAvenir

Nous définissons ensemble vos objectifs afin de concevoir un investissement locatif qui vous ressemble

Prendre rendez-vous

Les travaux d’optimisation

Nous avons concentré la rénovation sur l'optimisation de l'espace afin d'offrir une cuisine mieux équipée et une salle d'eau avec une cabine de douche. Ces améliorations apportent plus de confort et attirent non seulement des étudiants, mais aussi des jeunes actifs. Nous avons également amélioré le DPE et rénové les revêtements.

daphne

Architecte d’intérieur

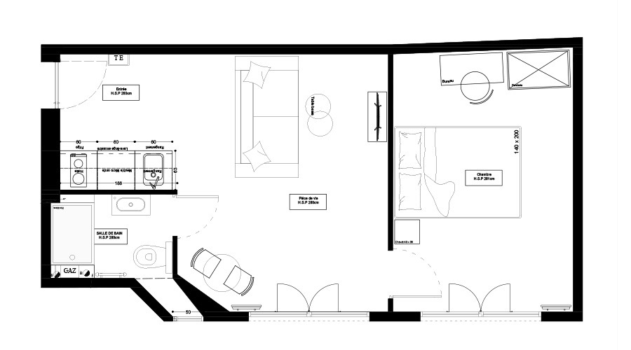
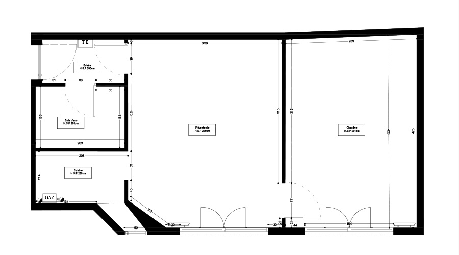
Évolution du plan

Avant travaux © Imavenir

Après travaux © Imavenir

Évolution de la chambre

Avant travaux © Imavenir

Après travaux © Imavenir

Évolution de la cuisine

Avant travaux © Imavenir

Après travaux © Imavenir

Évolution de la salle d’eau

Avant travaux © Imavenir

Après travaux © Imavenir

Rencontrer un conseiller immobilier ImAvenir

Nous définissons ensemble vos objectifs afin de concevoir un investissement locatif qui vous ressemble

Prendre rendez-vous

La stratégie financière

Ce projet constitue un excellent placement financier pour notre client, situé dans une zone à forte demande locative. La rénovation apporte une véritable valeur ajoutée à ce logement, qui bénéficie d'une belle cuisine et de tout le confort moderne. L'espace salon, avec son canapé, sera certainement très apprécié.

Budget

N’hésitez pas à nous solliciter pour toute question sur nos prestations ou nos tarifs.

199 500 €

Prix de présentation HAI

- 0 €

Prix de négocié HAI

16 758 €

Notaire

2 000 €

Architecture et maîtrise d’ouvrage

40 200 €

Travaux de rénovation

7 500 €

Mobilier et cuisine

17 234 €

Honoraires

283 192 €

Budget total

Rendement

Tout investissement présente un risque de perte en capital total ou partiel. Nos calculs sont des prévisions indicatives qui prennent en compte l’état du marché, les conditions d’acquisition et les modalités de financement. Elles ne sont pas des garanties sur les performances financières de nos produits d’investissement. Dès la fin de l’opération après la mise en location, nous vous orientons vers un expert comptable pour optimiser vos revenus fonciers et la fiscalité à long terme.

14 400 €

Loyer annuel

1 320 €

Charges de copropriété

250 €

Taxe foncière

5.4 %

Rendement brut

Rencontrer un conseiller immobilier ImAvenir

Nous définissons ensemble vos objectifs afin de concevoir un investissement locatif qui vous ressemble

Prendre rendez-vous

Newsletter ImAvenir

Rejoindre notre newsletter

Recevez tous les mois le meilleur de l’investissement locatif directement dans votre boite mail.

En vous inscrivant, vous acceptez de recevoir par e-mail les actualités et conseils d’ImAvenir sur l’investissement locatif. Pour en savoir plus sur la gestion de vos données, consultez notre politique de confidentialité.