172 959 €

Budget global

10 800 €

Loyer annuel

6.62 %

Rendement brut

Le brief

Notre client, consultant en cabinet de conseil juridique et financier, avait initialement entrepris de rechercher des biens immobiliers autour de Boulogne-Billancourt par ses propres moyens. Désireux d'optimiser son temps et d'assurer la réussite de son projet, il a finalement choisi l'investissement locatif clé en main avec ImAvenir.

Mathieu Doliveux

Directeur Associé

Rencontrer un conseiller immobilier ImAvenir

Nous définissons ensemble vos objectifs afin de concevoir un investissement locatif qui vous ressemble

Prendre rendez-vous

Le bien déniché

Caractéristiques

Typologie

Studio

Fenêtres

Etage

2

Extérieur

Aucun

Chambre

Ascenseur

Oui
Rencontrer un conseiller immobilier ImAvenir

Nous définissons ensemble vos objectifs afin de concevoir un investissement locatif qui vous ressemble

Prendre rendez-vous

Les travaux d’optimisation

Nous avons concentré les travaux sur l’assainissement du bien et l’amélioration de sa performance énergétique. La salle d’eau nécessitait une reconfiguration en raison d’un couloir étroit entraînant une perte d’espace. Nous l’avons agrandie pour offrir plus de fonctionnalité et de confort. La cuisine a été ouverte sur le séjour, créant ainsi une impression de volume et d’espace. Enfin, les revêtements ont été modernisés afin de donner à l’ensemble une allure contemporaine et accueillante.

daphne

Architecte d’intérieur

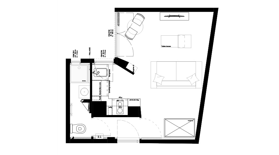
Évolution du plan

Avant travaux © Imavenir

Après travaux © Imavenir

Évolution du salon

Avant travaux © Imavenir

Après travaux © Imavenir

Évolution de la cuisine

Avant travaux © Imavenir

Après travaux © Imavenir

Rencontrer un conseiller immobilier ImAvenir

Nous définissons ensemble vos objectifs afin de concevoir un investissement locatif qui vous ressemble

Prendre rendez-vous

La stratégie financière

Ce projet présente une excellente rentabilité, grâce à un prix d’achat décoté. Les travaux réalisés ont permis de redonner au logement toute son attractivité et d’en augmenter la valeur. Son emplacement stratégique, à proximité immédiate d'une grande gare reliant Paris et La Défense, en fait une opportunité d'investissement particulièrement sécurisée.

Budget

N’hésitez pas à nous solliciter pour toute question sur nos prestations ou nos tarifs.

115 560 €

Prix de présentation HAI

- 0 €

Prix de négocié HAI

9 707 €

Notaire

2 000 €

Architecture et maîtrise d’ouvrage

26 575 €

Travaux de rénovation

7 497 €

Mobilier et cuisine

11 617 €

Honoraires

172 959 €

Budget total

Rendement

Tout investissement présente un risque de perte en capital total ou partiel. Nos calculs sont des prévisions indicatives qui prennent en compte l’état du marché, les conditions d’acquisition et les modalités de financement. Elles ne sont pas des garanties sur les performances financières de nos produits d’investissement. Dès la fin de l’opération après la mise en location, nous vous orientons vers un expert comptable pour optimiser vos revenus fonciers et la fiscalité à long terme.

10 800 €

Loyer annuel

1 200 €

Charges de copropriété

400 €

Taxe foncière

6.62 %

Rendement brut

Rencontrer un conseiller immobilier ImAvenir

Nous définissons ensemble vos objectifs afin de concevoir un investissement locatif qui vous ressemble

Prendre rendez-vous

Newsletter ImAvenir

Rejoindre notre newsletter

Recevez tous les mois le meilleur de l’investissement locatif directement dans votre boite mail.

En vous inscrivant, vous acceptez de recevoir par e-mail les actualités et conseils d’ImAvenir sur l’investissement locatif. Pour en savoir plus sur la gestion de vos données, consultez notre politique de confidentialité.