170 883 €

Budget global

11 400 €

Loyer annuel

7.05 %

Rendement brut

Le brief

Philippe et Serena, couple établi en Thaïlande depuis plusieurs années, souhaite réaliser un investissement locatif clé en main à Paris.

Mathieu Doliveux

Directeur Associé

Rencontrer un conseiller immobilier ImAvenir

Nous définissons ensemble vos objectifs afin de concevoir un investissement locatif qui vous ressemble

Prendre rendez-vous

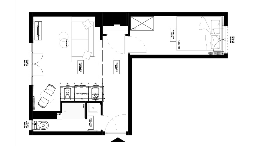
Le bien déniché

Caractéristiques

Typologie

T2

Fenêtres

2

Etage

3

Extérieur

Aucun

Chambre

1

Ascenseur

Non
Rencontrer un conseiller immobilier ImAvenir

Nous définissons ensemble vos objectifs afin de concevoir un investissement locatif qui vous ressemble

Prendre rendez-vous

Les travaux d’optimisation

Le bien était déjà bien agencé. Pour cette rénovation, nous avons principalement agrandi la salle d'eau pour installer une cabine de douche complète, ce qui devrait augmenter considérablement sa valeur locative. En déplaçant la cuisine vers le séjour, nous avons créé une chambre supplémentaire. Cet agencement, avec une chambre et un espace lave-linge, est conçu pour attirer des jeunes actifs. De plus, nous avons optimisé l'espace en créant une zone dédiée aux repas pour utiliser tout le volume disponible.

daphne

Architecte d’intérieur

Évolution du plan

Avant travaux © Imavenir

Après travaux © Imavenir

Évolution du salon

Avant travaux © Imavenir

Après travaux © Imavenir

Évolution de la salle d’eau

Avant travaux © Imavenir

Après travaux © Imavenir

Évolution de la chambre

Avant travaux © Imavenir

Après travaux © Imavenir

Rencontrer un conseiller immobilier ImAvenir

Nous définissons ensemble vos objectifs afin de concevoir un investissement locatif qui vous ressemble

Prendre rendez-vous

La stratégie financière

C'est une très belle opération d'investissement locatif avec un rendement de 7% pour ce bien. Non seulement c'est un bel investissement pour l'avenir, mais c'est également un placement financier très rentable à moyen terme. Nos clients ont financé l'opération comptant, ce qui leur permettra de réaliser d'importants bénéfices.

Budget

N’hésitez pas à nous solliciter pour toute question sur nos prestations ou nos tarifs.

109 000 €

Prix de présentation HAI

- 109 000 €

Prix de négocié HAI

9 156 €

Notaire

2 000 €

Architecture et maîtrise d’ouvrage

31 750 €

Travaux de rénovation

7 500 €

Mobilier et cuisine

11 477 €

Honoraires

170 883 €

Budget total

Rendement

Tout investissement présente un risque de perte en capital total ou partiel. Nos calculs sont des prévisions indicatives qui prennent en compte l’état du marché, les conditions d’acquisition et les modalités de financement. Elles ne sont pas des garanties sur les performances financières de nos produits d’investissement. Dès la fin de l’opération après la mise en location, nous vous orientons vers un expert comptable pour optimiser vos revenus fonciers et la fiscalité à long terme.

11 400 €

Loyer annuel

1 920 €

Charges de copropriété

400 €

Taxe foncière

7.05 %

Rendement brut

Rencontrer un conseiller immobilier ImAvenir

Nous définissons ensemble vos objectifs afin de concevoir un investissement locatif qui vous ressemble

Prendre rendez-vous

Newsletter ImAvenir

Rejoindre notre newsletter

Recevez tous les mois le meilleur de l’investissement locatif directement dans votre boite mail.

En vous inscrivant, vous acceptez de recevoir par e-mail les actualités et conseils d’ImAvenir sur l’investissement locatif. Pour en savoir plus sur la gestion de vos données, consultez notre politique de confidentialité.