232 388 €

Budget global

10 800 €

Loyer annuel

4.95 %

Rendement brut

Le brief

Pierre a connu ImAvenir et l'investissement locatif clé en main après notre passage sur BFM Business. Il avait déjà investi à Toulouse avec le dispositif Pinel mais souhaitait tester le statut LMNP.

Vincent

Responsable immobilier Paris et première couronne

Rencontrer un conseiller immobilier ImAvenir

Nous définissons ensemble vos objectifs afin de concevoir un investissement locatif qui vous ressemble

Prendre rendez-vous

Le bien déniché

Caractéristiques

Typologie

T2

Fenêtres

2

Etage

2

Extérieur

Aucun

Chambre

-3

Ascenseur

Non
Rencontrer un conseiller immobilier ImAvenir

Nous définissons ensemble vos objectifs afin de concevoir un investissement locatif qui vous ressemble

Prendre rendez-vous

Les travaux d’optimisation

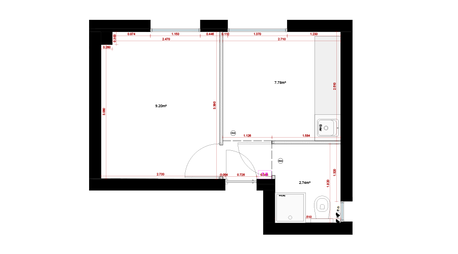
Le challenge dans ce studio ? Ajouter une chambre avec un petit bureau pour des jeunes actifs ou des étudiants. Nous avons légèrement déplacé la cloison centrale pour que la nouvelle pièce soit supérieure à 9m2. La salle d'eau a été optimisée et légèrement réduite pour agrandir la cuisine et placer une télévision. Ces équipements permettent d'augmenter la valeur locative et d'appliquer un complément de loyer.

agathe

Architecte d’intérieur

Évolution du plan

Avant travaux © Imavenir

Après travaux © Imavenir

Évolution de la cuisine

Avant travaux © Imavenir

Après travaux © Imavenir

Évolution de la chambre

Avant travaux © Imavenir

Après travaux © Imavenir

Évolution de l'entrée

Avant travaux © Imavenir

Après travaux © Imavenir

Rencontrer un conseiller immobilier ImAvenir

Nous définissons ensemble vos objectifs afin de concevoir un investissement locatif qui vous ressemble

Prendre rendez-vous

La stratégie financière

Ce projet permet à notre investisseur Pierre d'obtenir une rentabilité intéressante dans une zone plutôt patrimoniale. Il y a donc une très grande sécurité à long terme et les projets du Grand Paris express permettront de réaliser des plus-values.

Budget

N’hésitez pas à nous solliciter pour toute question sur nos prestations ou nos tarifs.

170 000 €

Prix de présentation HAI

- 0 €

Prix de négocié HAI

14 280 €

Notaire

2 000 €

Architecture et maîtrise d’ouvrage

22 000 €

Travaux de rénovation

7 500 €

Mobilier et cuisine

15 536 €

Honoraires

232 388 €

Budget total

Rendement

Tout investissement présente un risque de perte en capital total ou partiel. Nos calculs sont des prévisions indicatives qui prennent en compte l’état du marché, les conditions d’acquisition et les modalités de financement. Elles ne sont pas des garanties sur les performances financières de nos produits d’investissement. Dès la fin de l’opération après la mise en location, nous vous orientons vers un expert comptable pour optimiser vos revenus fonciers et la fiscalité à long terme.

10 800 €

Loyer annuel

598 €

Charges de copropriété

0 €

Taxe foncière

4.95 %

Rendement brut

Rencontrer un conseiller immobilier ImAvenir

Nous définissons ensemble vos objectifs afin de concevoir un investissement locatif qui vous ressemble

Prendre rendez-vous

Newsletter ImAvenir

Rejoindre notre newsletter

Recevez tous les mois le meilleur de l’investissement locatif directement dans votre boite mail.

En vous inscrivant, vous acceptez de recevoir par e-mail les actualités et conseils d’ImAvenir sur l’investissement locatif. Pour en savoir plus sur la gestion de vos données, consultez notre politique de confidentialité.