234 082 €

Budget global

11 400 €

Loyer annuel

5.04 %

Rendement brut

Le brief

Sarah est avocate. Elle souhaite réaliser un deuxième investissement locatif clé en main après une première opération au Sud de Paris avec ImAvenir.

Alexandre Bougon

Directeur Associé

Rencontrer un conseiller immobilier ImAvenir

Nous définissons ensemble vos objectifs afin de concevoir un investissement locatif qui vous ressemble

Prendre rendez-vous

Le bien déniché

Caractéristiques

Typologie

T2

Fenêtres

2

Etage

3

Extérieur

Aucun

Chambre

Ascenseur

Non
Rencontrer un conseiller immobilier ImAvenir

Nous définissons ensemble vos objectifs afin de concevoir un investissement locatif qui vous ressemble

Prendre rendez-vous

Les travaux d’optimisation

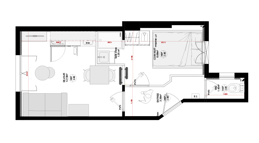
Ce bien, plutôt grand pour un studio, avait une cuisine trop imposante et coincée dans un espace très sombre. Nous avons transformé ce studio en T2 en fermant la cloison de l'ancienne cuisine et en cassant celle de l'ancienne salle d'eau. La salle d'eau a été réduite et déplacée contre la nouvelle cloison, donnant sur la chambre. La nouvelle cuisine, quant à elle, a été installée dans le séjour pour optimiser l'espace.

agathe

Architecte d’intérieur

Évolution du plan

Avant travaux © Imavenir

Après travaux © Imavenir

Évolution du salon

Avant travaux © Imavenir

Après travaux © Imavenir

Évolution de la salle d’eau

Avant travaux © Imavenir

Après travaux © Imavenir

Évolution du couloir

Avant travaux © Imavenir

Après travaux © Imavenir

Rencontrer un conseiller immobilier ImAvenir

Nous définissons ensemble vos objectifs afin de concevoir un investissement locatif qui vous ressemble

Prendre rendez-vous

La stratégie financière

Il s'agit d'une deuxième opération réussie à l'image de la première. Ce bien est très bien situé et sécurisé financièrement, dans une zone agréable et attractive pour les locataires. Avec une stratégie équilibrée comme celle-ci, il sera possible de poursuivre avec une troisième opération et de continuer de faire fonctionner l'effet de levier bancaire.

Budget

N’hésitez pas à nous solliciter pour toute question sur nos prestations ou nos tarifs.

165 000 €

Prix de présentation HAI

- 0 €

Prix de négocié HAI

13 860 €

Notaire

2 000 €

Architecture et maîtrise d’ouvrage

30 000 €

Travaux de rénovation

7 500 €

Mobilier et cuisine

15 722 €

Honoraires

234 082 €

Budget total

Rendement

Tout investissement présente un risque de perte en capital total ou partiel. Nos calculs sont des prévisions indicatives qui prennent en compte l’état du marché, les conditions d’acquisition et les modalités de financement. Elles ne sont pas des garanties sur les performances financières de nos produits d’investissement. Dès la fin de l’opération après la mise en location, nous vous orientons vers un expert comptable pour optimiser vos revenus fonciers et la fiscalité à long terme.

11 400 €

Loyer annuel

1 020 €

Charges de copropriété

380 €

Taxe foncière

5.04 %

Rendement brut

Rencontrer un conseiller immobilier ImAvenir

Nous définissons ensemble vos objectifs afin de concevoir un investissement locatif qui vous ressemble

Prendre rendez-vous

Newsletter ImAvenir

Rejoindre notre newsletter

Recevez tous les mois le meilleur de l’investissement locatif directement dans votre boite mail.

En vous inscrivant, vous acceptez de recevoir par e-mail les actualités et conseils d’ImAvenir sur l’investissement locatif. Pour en savoir plus sur la gestion de vos données, consultez notre politique de confidentialité.