234 891 €

Budget global

11 040 €

Loyer annuel

5 %

Rendement brut

Le brief

Sarah est avocate. Elle souhaite construire son patrimoine à court terme grâce à l'investissement locatif clé en main. A long terme, elle souhaiterait générer des revenus complémentaires pour sa retraite.

Mathieu Doliveux

Directeur Associé

Rencontrer un conseiller immobilier ImAvenir

Nous définissons ensemble vos objectifs afin de concevoir un investissement locatif qui vous ressemble

Prendre rendez-vous

Le bien déniché

Caractéristiques

Typologie

Studio

Fenêtres

2

Etage

2

Extérieur

Aucun

Chambre

Ascenseur

Non
Rencontrer un conseiller immobilier ImAvenir

Nous définissons ensemble vos objectifs afin de concevoir un investissement locatif qui vous ressemble

Prendre rendez-vous

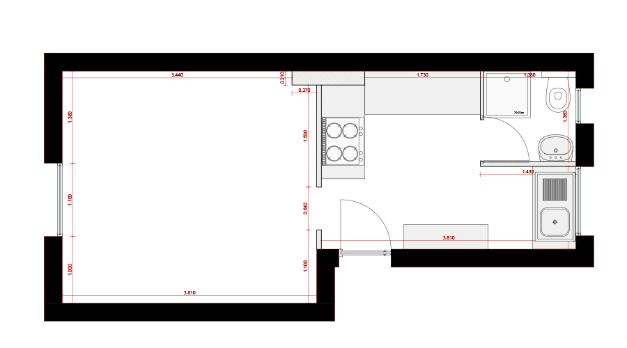
Les travaux d’optimisation

A l'origine, l'espace de ce studio regroupant la cuisine et la salle d'eau était mal distribué. Nous avons alors réduit la taille de la salle d'eau pour pouvoir agrandir la cuisine en installant un grand plan de travail. Enfin, nous avons optimisé la surface de cet appartement au maximum en choisissant un mobilier adapté.

agathe

Architecte d’intérieur

Évolution du plan

Avant travaux © Imavenir

Après travaux © Imavenir

Évolution du salon

Avant travaux © Imavenir

Après travaux © Imavenir

Évolution de la cuisine

Avant travaux © Imavenir

Après travaux © Imavenir

Rencontrer un conseiller immobilier ImAvenir

Nous définissons ensemble vos objectifs afin de concevoir un investissement locatif qui vous ressemble

Prendre rendez-vous

La stratégie financière

Ce projet est une opération équilibrée entre le patrimoine et le rendement. Le bien choisi permet d'avoir une très grande sécurité grâce à la proximité des transports en commun. Il n'y aura aucun problèmes pour trouver des locataires et atteindre les rentabilités projetées.

Budget

N’hésitez pas à nous solliciter pour toute question sur nos prestations ou nos tarifs.

180 200 €

Prix de présentation HAI

- 10 200 €

Prix de négocié HAI

14 280 €

Notaire

2 000 €

Architecture et maîtrise d’ouvrage

24 000 €

Travaux de rénovation

6 500 €

Mobilier et cuisine

15 608 €

Honoraires

234 891 €

Budget total

Rendement

Tout investissement présente un risque de perte en capital total ou partiel. Nos calculs sont des prévisions indicatives qui prennent en compte l’état du marché, les conditions d’acquisition et les modalités de financement. Elles ne sont pas des garanties sur les performances financières de nos produits d’investissement. Dès la fin de l’opération après la mise en location, nous vous orientons vers un expert comptable pour optimiser vos revenus fonciers et la fiscalité à long terme.

11 040 €

Loyer annuel

600 €

Charges de copropriété

279 €

Taxe foncière

5 %

Rendement brut

Rencontrer un conseiller immobilier ImAvenir

Nous définissons ensemble vos objectifs afin de concevoir un investissement locatif qui vous ressemble

Prendre rendez-vous

Newsletter ImAvenir

Rejoindre notre newsletter

Recevez tous les mois le meilleur de l’investissement locatif directement dans votre boite mail.

En vous inscrivant, vous acceptez de recevoir par e-mail les actualités et conseils d’ImAvenir sur l’investissement locatif. Pour en savoir plus sur la gestion de vos données, consultez notre politique de confidentialité.