224 466 €

Budget global

10 800 €

Loyer annuel

5.12 %

Rendement brut

Le brief

Valentine est expatriée en Chine. Elle souhaitait faire un investissement locatif clé en main dans un bien sans nuisances, pour des locataires soigneux, et sur une longue durée.

Alexandre Bougon

Directeur Associé

Rencontrer un conseiller immobilier ImAvenir

Nous définissons ensemble vos objectifs afin de concevoir un investissement locatif qui vous ressemble

Prendre rendez-vous

Le bien déniché

Caractéristiques

Typologie

T2

Fenêtres

2

Etage

2

Extérieur

Aucun

Chambre

1

Ascenseur

Non
Rencontrer un conseiller immobilier ImAvenir

Nous définissons ensemble vos objectifs afin de concevoir un investissement locatif qui vous ressemble

Prendre rendez-vous

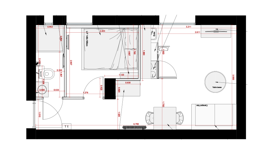
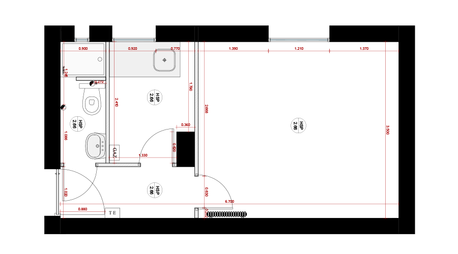
Les travaux d’optimisation

Ce studio a été transformé en T2 pour optimiser la valeur locative. L'ancienne cuisine a été agrandie pour être transformée en chambre. Enfin, la salle d'eau a été réagencée pour gagner de l'espace.

agathe

Architecte d’intérieur

Évolution du plan

Avant travaux © Imavenir

Après travaux © Imavenir

Évolution du salon

Avant travaux © Imavenir

Après travaux © Imavenir

Évolution de la chambre

Avant travaux © Imavenir

Après travaux © Imavenir

Évolution du couloir

Avant travaux © Imavenir

Après travaux © Imavenir

Rencontrer un conseiller immobilier ImAvenir

Nous définissons ensemble vos objectifs afin de concevoir un investissement locatif qui vous ressemble

Prendre rendez-vous

La stratégie financière

Ce projet coche les critères de notre investisseuse en étant à la fois un placement intéressant mais très sécurisé dans une zone résidentielle. On peut même espérer des plus-values après la construction du métro 17 à horizon 2030.

Budget

N’hésitez pas à nous solliciter pour toute question sur nos prestations ou nos tarifs.

165 000 €

Prix de présentation HAI

- 5 000 €

Prix de négocié HAI

12 720 €

Notaire

2 000 €

Architecture et maîtrise d’ouvrage

25 000 €

Travaux de rénovation

7 500 €

Mobilier et cuisine

14 920 €

Honoraires

224 466 €

Budget total

Rendement

Tout investissement présente un risque de perte en capital total ou partiel. Nos calculs sont des prévisions indicatives qui prennent en compte l’état du marché, les conditions d’acquisition et les modalités de financement. Elles ne sont pas des garanties sur les performances financières de nos produits d’investissement. Dès la fin de l’opération après la mise en location, nous vous orientons vers un expert comptable pour optimiser vos revenus fonciers et la fiscalité à long terme.

10 800 €

Loyer annuel

624 €

Charges de copropriété

460 €

Taxe foncière

5.12 %

Rendement brut

Rencontrer un conseiller immobilier ImAvenir

Nous définissons ensemble vos objectifs afin de concevoir un investissement locatif qui vous ressemble

Prendre rendez-vous

Newsletter ImAvenir

Rejoindre notre newsletter

Recevez tous les mois le meilleur de l’investissement locatif directement dans votre boite mail.

En vous inscrivant, vous acceptez de recevoir par e-mail les actualités et conseils d’ImAvenir sur l’investissement locatif. Pour en savoir plus sur la gestion de vos données, consultez notre politique de confidentialité.