254 669 €

Budget global

13 200 €

Loyer annuel

4.95 %

Rendement brut

Le brief

Charlotte travaille dans l'industrie pharmaceutique à Boulogne-Billancourt. Elle souhaite réaliser un investissement locatif clé en main dans les Hauts-de-Seine, dans un quartier plutôt sécurisé, et pour louer à des étudiants ou à de jeunes actifs.

Mathieu Doliveux

Directeur Associé

Rencontrer un conseiller immobilier ImAvenir

Nous définissons ensemble vos objectifs afin de concevoir un investissement locatif qui vous ressemble

Prendre rendez-vous

Le bien déniché

Caractéristiques

Typologie

T2

Fenêtres

2

Etage

5

Extérieur

Aucun

Chambre

Ascenseur

Non
Rencontrer un conseiller immobilier ImAvenir

Nous définissons ensemble vos objectifs afin de concevoir un investissement locatif qui vous ressemble

Prendre rendez-vous

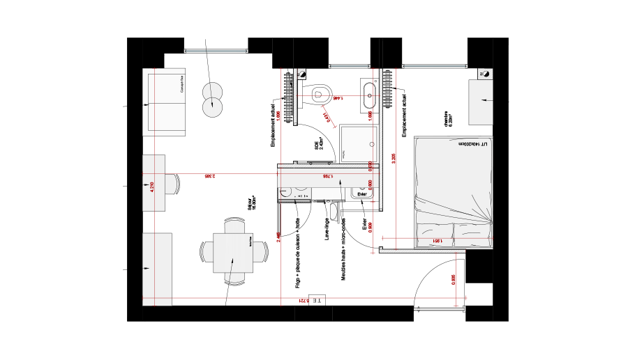
Les travaux d’optimisation

L'objectif de rénovation de cet appartement était de le reconfigurer en T2. Nous avons alors transformé l'ancienne cuisine en chambre en gardant la même surface. Nous avons également rétréci la salle d'eau puis installé la cuisine contre la nouvelle cloison. Ainsi, il a été possible de conserver des espaces séparés pour la pièce de vie tout en créant une sensation de volume.

agathe

Architecte d’intérieur

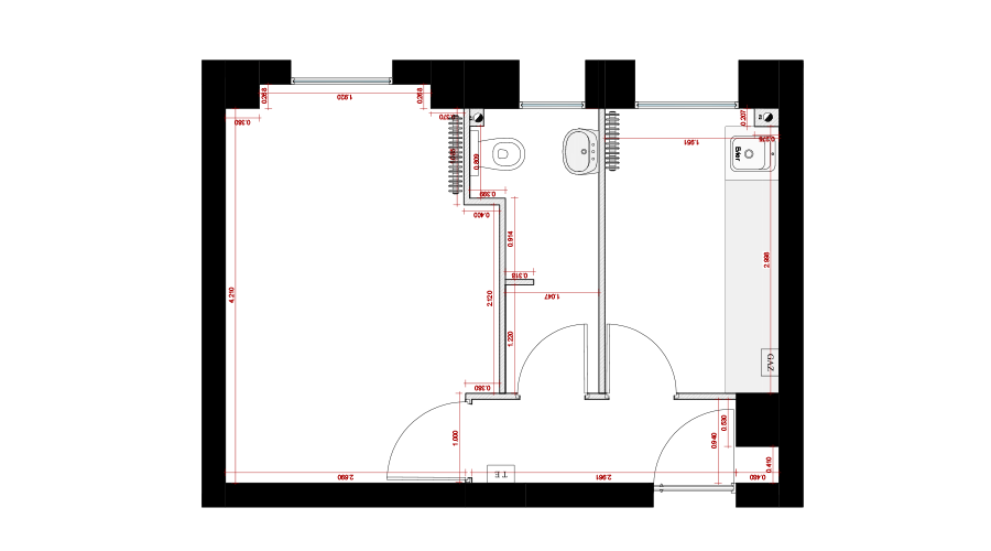
Évolution du plan

Avant travaux © Imavenir

Après travaux © Imavenir

Évolution du salon

Avant travaux © Imavenir

Après travaux © Imavenir

Évolution du couloir

Avant travaux © Imavenir

Après travaux © Imavenir

Évolution du salon

Avant travaux © Imavenir

Après travaux © Imavenir

Rencontrer un conseiller immobilier ImAvenir

Nous définissons ensemble vos objectifs afin de concevoir un investissement locatif qui vous ressemble

Prendre rendez-vous

La stratégie financière

Ce projet permet d'atteindre un rendement brut de presque 5%, très satisfaisait pour le secteur choisi. Le plus intéressant reste la sécurité de ce placement avec aucune vacance locative en perspective. Cet appartement charmant intéressera probablement un jeune couple qui pourra y rester quelques années. De quoi diminuer le turn over et augmenter la rentabilité en n'ayant pas à renouveler le bail ni le mobilier chaque année.

Budget

N’hésitez pas à nous solliciter pour toute question sur nos prestations ou nos tarifs.

190 800 €

Prix de présentation HAI

- 0 €

Prix de négocié HAI

15 264 €

Notaire

2 000 €

Architecture et maîtrise d’ouvrage

23 000 €

Travaux de rénovation

6 500 €

Mobilier et cuisine

17 105 €

Honoraires

254 669 €

Budget total

Rendement

Tout investissement présente un risque de perte en capital total ou partiel. Nos calculs sont des prévisions indicatives qui prennent en compte l’état du marché, les conditions d’acquisition et les modalités de financement. Elles ne sont pas des garanties sur les performances financières de nos produits d’investissement. Dès la fin de l’opération après la mise en location, nous vous orientons vers un expert comptable pour optimiser vos revenus fonciers et la fiscalité à long terme.

13 200 €

Loyer annuel

780 €

Charges de copropriété

300 €

Taxe foncière

4.95 %

Rendement brut

Rencontrer un conseiller immobilier ImAvenir

Nous définissons ensemble vos objectifs afin de concevoir un investissement locatif qui vous ressemble

Prendre rendez-vous

Newsletter ImAvenir

Rejoindre notre newsletter

Recevez tous les mois le meilleur de l’investissement locatif directement dans votre boite mail.

En vous inscrivant, vous acceptez de recevoir par e-mail les actualités et conseils d’ImAvenir sur l’investissement locatif. Pour en savoir plus sur la gestion de vos données, consultez notre politique de confidentialité.