233 040 €

Budget global

11 400 €

Loyer annuel

5.21 %

Rendement brut

Le brief

Elric nous a connu sur LinkedIn. Il a déjà investi une première fois à Asnières-sur-Seine seul et souhaite faire un deuxième investissement locatif clé en main avec ImAvenir pour gagner du temps.

Mathieu Doliveux

Directeur Associé

Rencontrer un conseiller immobilier ImAvenir

Nous définissons ensemble vos objectifs afin de concevoir un investissement locatif qui vous ressemble

Prendre rendez-vous

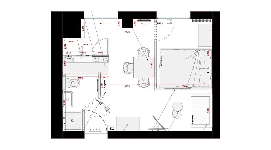
Le bien déniché

Caractéristiques

Typologie

T2

Fenêtres

2

Etage

5

Extérieur

Aucun

Chambre

Ascenseur

Non
Rencontrer un conseiller immobilier ImAvenir

Nous définissons ensemble vos objectifs afin de concevoir un investissement locatif qui vous ressemble

Prendre rendez-vous

Les travaux d’optimisation

Cet appartement nécessitait principalement des travaux de rafraichissement et d'optimisation. Nous avons installé une nouvelle cuisine contre la cloison de la salle d'eau pour pouvoir ajouter un plan de travail supplémentaire. Dans l'optique de transformer ce studio en T2, nous avons également monté une cloison dans le séjour pour y installer le coin nuit. Cette nouvelle configuration permet d'augmenter la rentabilité pour une même surface et d'attirer des locataires pour un plus longue durée grâce au lave-linge et aux rangements.

agathe

Architecte d’intérieur

Évolution du plan

Avant travaux © Imavenir

Après travaux © Imavenir

Évolution de la chambre

Avant travaux © Imavenir

Après travaux © Imavenir

Évolution des toilettes

Avant travaux © Imavenir

Après travaux © Imavenir

Évolution de la cuisine

Avant travaux © Imavenir

Après travaux © Imavenir

Rencontrer un conseiller immobilier ImAvenir

Nous définissons ensemble vos objectifs afin de concevoir un investissement locatif qui vous ressemble

Prendre rendez-vous

La stratégie financière

Ce projet permet d'obtenir un rendement similaire à celui que notre investisseur aurait obtenu seul grâce au travail sur l'optimisation des plans et la rénovation. Notre investisseur a donc un deuxième appartements facilement louable, proche de son domicile et sans avoir eu à régler lui-même tous les aléas habituels de ce type de projet.

Budget

N’hésitez pas à nous solliciter pour toute question sur nos prestations ou nos tarifs.

169 500 €

Prix de présentation HAI

- 0 €

Prix de négocié HAI

13 560 €

Notaire

2 000 €

Architecture et maîtrise d’ouvrage

23 000 €

Travaux de rénovation

7 500 €

Mobilier et cuisine

15 520 €

Honoraires

233 040 €

Budget total

Rendement

Tout investissement présente un risque de perte en capital total ou partiel. Nos calculs sont des prévisions indicatives qui prennent en compte l’état du marché, les conditions d’acquisition et les modalités de financement. Elles ne sont pas des garanties sur les performances financières de nos produits d’investissement. Dès la fin de l’opération après la mise en location, nous vous orientons vers un expert comptable pour optimiser vos revenus fonciers et la fiscalité à long terme.

11 400 €

Loyer annuel

1 044 €

Charges de copropriété

322 €

Taxe foncière

5.21 %

Rendement brut

Rencontrer un conseiller immobilier ImAvenir

Nous définissons ensemble vos objectifs afin de concevoir un investissement locatif qui vous ressemble

Prendre rendez-vous

Newsletter ImAvenir

Rejoindre notre newsletter

Recevez tous les mois le meilleur de l’investissement locatif directement dans votre boite mail.

En vous inscrivant, vous acceptez de recevoir par e-mail les actualités et conseils d’ImAvenir sur l’investissement locatif. Pour en savoir plus sur la gestion de vos données, consultez notre politique de confidentialité.