242 774 €

Budget global

11 400 €

Loyer annuel

4.87 %

Rendement brut

Le brief

Avant son tour du monde, Quentin souhaitait réaliser un investissement locatif clé en main. Il avait un objectif plutôt patrimonial et souhaitait trouver un bien dans les Hauts-de-Seine.

Vincent

Responsable immobilier Paris et première couronne

Rencontrer un conseiller immobilier ImAvenir

Nous définissons ensemble vos objectifs afin de concevoir un investissement locatif qui vous ressemble

Prendre rendez-vous

Le bien déniché

Caractéristiques

Typologie

T2

Fenêtres

2

Etage

6

Extérieur

Aucun

Chambre

1

Ascenseur

Oui
Rencontrer un conseiller immobilier ImAvenir

Nous définissons ensemble vos objectifs afin de concevoir un investissement locatif qui vous ressemble

Prendre rendez-vous

Les travaux d’optimisation

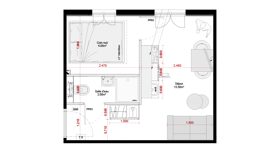
Le principal objectif de la rénovation était d'installer un coin nuit et d'améliorer le confort de la salle d'eau. L'ancienne cuisine a donc été cloisonnée pour créer un nouvel espace, petit mais fonctionnel pour pouvoir s'isoler. La nouvelle cuisine a été installée en enfilade dans le séjour pour ne pas encombrer le passage. Nous avons aussi pensé à un sas d'entrée avec une penderie et des rangements pour que les locataires puissent s'installer confortablement. Enfin la salle d'eau a été agrandie avec une cabine de douche fermée, un meuble vasque et des toilettes suspendues.

daphne

Architecte d’intérieur

Évolution du plan

Avant travaux © Imavenir

Après travaux © Imavenir

Évolution du salon

Avant travaux © Imavenir

Après travaux © Imavenir

Évolution de la chambre

Avant travaux © Imavenir

Après travaux © Imavenir

Évolution de la salle d’eau

Avant travaux © Imavenir

Après travaux © Imavenir

Rencontrer un conseiller immobilier ImAvenir

Nous définissons ensemble vos objectifs afin de concevoir un investissement locatif qui vous ressemble

Prendre rendez-vous

La stratégie financière

Ce projet permet à notre investisseur d'obtenir un bon rendement brut pour le secteur. La qualité du logement, de la vue et sa proximité avec le métro 4 en font surtout un investissement très sécurisé. Il n'y aucun risque de vacance locative trop prolongée dans le secteur. Enfin, la construction d'une station de la nouvelle ligne 15, en correspondance avec le terminus de la ligne Châtillon-Montrouge, donne des perspectives intéressantes de valorisation à moyen terme.

Budget

N’hésitez pas à nous solliciter pour toute question sur nos prestations ou nos tarifs.

177 000 €

Prix de présentation HAI

- 0 €

Prix de négocié HAI

14 868 €

Notaire

2 000 €

Architecture et maîtrise d’ouvrage

25 100 €

Travaux de rénovation

7 500 €

Mobilier et cuisine

16 306 €

Honoraires

242 774 €

Budget total

Rendement

Tout investissement présente un risque de perte en capital total ou partiel. Nos calculs sont des prévisions indicatives qui prennent en compte l’état du marché, les conditions d’acquisition et les modalités de financement. Elles ne sont pas des garanties sur les performances financières de nos produits d’investissement. Dès la fin de l’opération après la mise en location, nous vous orientons vers un expert comptable pour optimiser vos revenus fonciers et la fiscalité à long terme.

11 400 €

Loyer annuel

660 €

Charges de copropriété

280 €

Taxe foncière

4.87 %

Rendement brut

Rencontrer un conseiller immobilier ImAvenir

Nous définissons ensemble vos objectifs afin de concevoir un investissement locatif qui vous ressemble

Prendre rendez-vous

Newsletter ImAvenir

Rejoindre notre newsletter

Recevez tous les mois le meilleur de l’investissement locatif directement dans votre boite mail.

En vous inscrivant, vous acceptez de recevoir par e-mail les actualités et conseils d’ImAvenir sur l’investissement locatif. Pour en savoir plus sur la gestion de vos données, consultez notre politique de confidentialité.